Quiet street location with parking, garden and excellent school choices nearby.
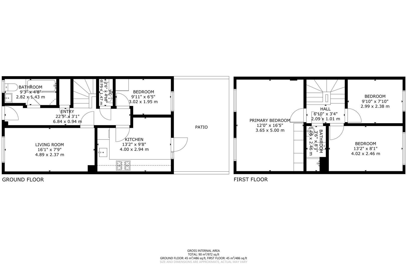
Four bedrooms and two bathrooms plus separate WC
This end-of-terrace family home on Nightingale Way offers four bedrooms, two bathrooms and a separate WC across a compact 972 sq ft layout. The property benefits from an off-street drive for two cars, a rear garden for children or entertaining, and double glazing installed after 2002. Built in the late 1980s and offered freehold, it has modern heating (gas boiler and radiators) and low local flood risk.
Commuters will appreciate the 15-minute walk to Royal Albert DLR (two stops to the Elizabeth Line at Custom House) and very fast access to the A13, A12, A406 and M25. Local everyday needs are covered by nearby Lidl and ASDA, and Beckton Park offers green space for families. School provision is a clear strength, with highly regarded options nearby including Brampton Manor Academy and several “Good” primary schools.
The house is small on a modest plot and the internal footprint is compact; rooms are generally average in size. There is scope to extend subject to planning permission (STPP), which presents potential to increase living space. Buyers should note the property appears well-presented but offers limited external space and may require adaptation for larger families wanting more generous rooms or gardens.
Overall, the home suits families and commuters seeking a well-located, freehold property with good schools, parking and transport links — with realistic expectations about size and potential for extension rather than immediate large-scale living space.
4 bedroom end of terrace house for sale in Long Mark Road, London, E16 — £500,000 • 4 bed • 2 bath • 863 ft²
4 bedroom link detached house for sale in Beckton, London E6 — £645,000 • 4 bed • 2 bath • 1018 ft²
4 bedroom semi-detached house for sale in Greenwich Crescent, Beckton, London, E6 — £550,000 • 4 bed • 2 bath • 1658 ft²
4 bedroom house for sale in Beacons Close, Beckton, London, E6 — £650,000 • 4 bed • 1 bath • 1240 ft²
3 bedroom town house for sale in Viscount Drive, London, E6 — £475,000 • 3 bed • 2 bath • 906 ft²
3 bedroom semi-detached house for sale in Nightingale Way, London, E6 — £500,000 • 3 bed • 2 bath • 512 ft²














































