Spacious home with large garden and loft extension potential for growing families.
Chain free freehold three-bedroom semi-detached house
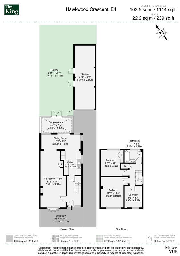
Set at the top of Hawkwood Crescent next to Epping Forest and Hawkwood Nature Reserve, this three-bedroom semi-detached house offers a rare combination of space, garden and school catchment. Chain free and freehold, the property has a long garage, off-street parking and a private rear garden with mature planting — ideal for young families wanting outdoor space close to nature.
The interior provides a double-length through lounge, fitted kitchen and conservatory, plus three first-floor bedrooms and a family bathroom. The house needs cosmetic updating and some external maintenance (repointing and a roof inspection advised), which presents an opportunity to modernise and increase value. There is clear scope to extend into the loft and create a rear ground-floor extension, subject to the usual planning permissions.
Practical advantages include fast broadband, easy access to local buses, and proximity to Yardley Primary (Outstanding) and other well-regarded schools. Council tax is above average and the local area scores as deprived on broader indices; crime levels are average. Overall this is a solid family buy offering immediate occupancy, outdoor space and development potential for future growth.
3 bedroom terraced house for sale in Mark Avenue, London, E4 — £525,000 • 3 bed • 1 bath • 955 ft²
3 bedroom semi-detached house for sale in Amesbury Drive, Chingford, E4 — £550,000 • 3 bed • 1 bath • 1270 ft²
3 bedroom house for sale in Amesbury Drive, London, E4 — £550,000 • 3 bed • 1 bath • 954 ft²
3 bedroom semi-detached house for sale in Faversham Avenue, London, E4 — £499,995 • 3 bed • 1 bath • 1129 ft²
5 bedroom terraced house for sale in Lukin Crescent, Chingford, London, E4 — £650,000 • 5 bed • 3 bath • 1641 ft²
3 bedroom terraced house for sale in Hawthorns, WOODFORD GREEN, Essex, IG8 — £635,000 • 3 bed • 1 bath • 953 ft²






























































































