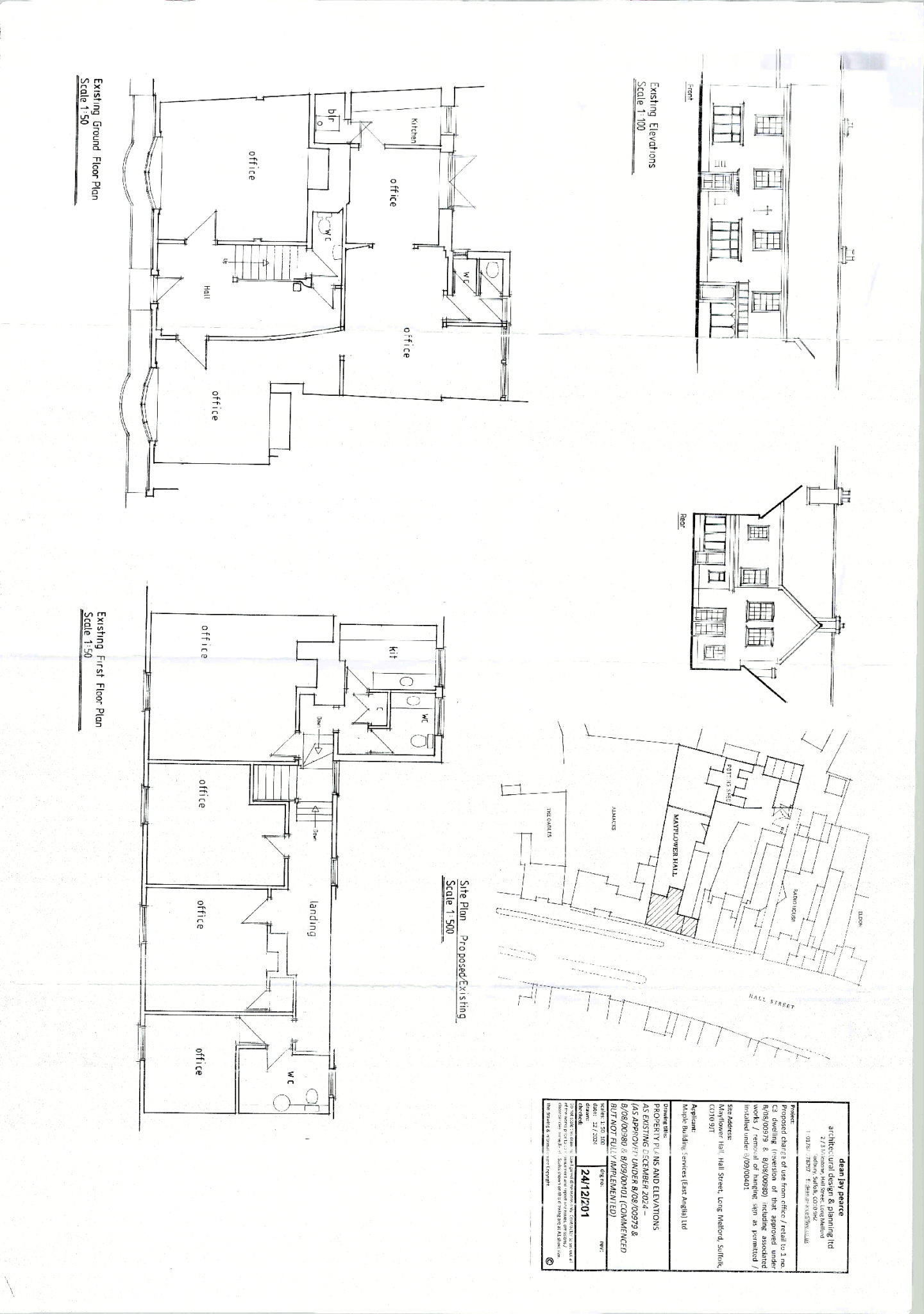
**Standout Features:**
- Attractive Grade II listed building with 17th-century origins
- Total space of 1,800 sq ft divided into ground (926 sq ft) and first floors (968 sq ft)
- Charming exposed timber beams and high ceilings
- Walled, secluded garden perfect for relaxation
- Located in the bustling heart of Long Melford, surrounded by cafes, shops, and amenities
- Oil-fired central heating
- Flexible usage potential for a variety of commercial applications
- Extensive on-street parking available
**Concise Summary:**
Mayflower Hall is an impressive Grade II listed building steeped in history, ideally situated in the heart of Long Melford. This spacious property, measuring 1,800 sq ft across two well-appointed floors, showcases exquisite exposed timber beams and high ceilings, creating a bright and inviting atmosphere. The ground floor offers three versatile office spaces, while the first floor presents an additional four offices, making it perfect for various commercial uses such as a boutique, café, or professional accommodation.
The charming walled garden adds a touch of serenity, providing an ideal outdoor oasis for clients or staff. With oil-fired central heating and a prominent location within a vibrant community rich in heritage, Mayflower Hall offers exceptional investment potential. Whether you're an investor looking for a unique property or a business seeking a captivating base, this gem should not be overlooked. Act swiftly—opportunities to own such a characterful space in a sought-after area are rare!
3 bedroom house for sale in Long Melford, Sudbury, Suffolk, CO10 — £450,000 • 3 bed • 3 bath • 4142 ft²
Commercial property for sale in High Street, Halstead, Essex, CO9 — £180,000 • 1 bed • 1 bath • 960 ft²
Commercial property for sale in High Street, Clare, Suffolk, CO10 — £275,000 • 2 bed • 1 bath • 1221 ft²
3 bedroom house for sale in Lavenham, Sudbury, Suffolk, CO10 — £650,000 • 3 bed • 3 bath • 2469 ft²
Office for sale in Waterhouse, Hedingham Road, CO9 4HS, CO9 — £595,000 • 1 bed • 1 bath • 2130 ft²
5 bedroom detached house for sale in Sudbury, Suffolk, CO10 — £550,000 • 5 bed • 1 bath • 3854 ft²


















































