GU14 6GP - 2 bed modern ground floor flat in Sopwith Drive, GU14 6GP

View on Property Piper

2 bedroom flat for sale in Sopwith Drive, Farnborough, Hampshire, GU14

Summary - 61 Sopwith Drive, Farnborough, Hampshire, GU14 GU14 6GP

2 bed 2 bath Flat

Compact contemporary home with parking and private patio, ideal for first-time buyers.
Ground-floor two-bedroom apartment, bright open-plan living
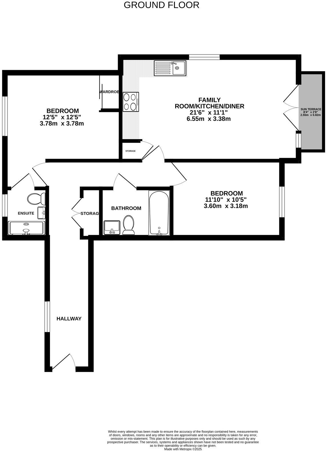
Bright, modern ground-floor flat with two double bedrooms and contemporary open-plan living. The main bedroom includes an en suite and built-in wardrobe; double doors open from the family room to a private sun deck/patio. The apartment is well presented with underfloor heating and an EPC B rating, making it energy-efficient and comfortable.

Practical benefits include two allocated off-street parking bays plus visitor spaces, well-kept communal gardens and a secure gated children’s play area. The development has a secure entry system and sits within walking distance of local shops, schools and Farnborough town centre.

Important practical points: the property is leasehold (c.142 years remaining) with an average service charge of £1,524 and ground rent of £285. The apartment is small at about 518 sq ft, so storage and layout should be considered. The area records higher crime levels than average; prospective buyers should check local crime data and visit to assess suitability.

This flat will suit first-time buyers or downsizers seeking a low-maintenance, modern home with parking and outdoor space. It offers immediate move-in condition but carries regular communal costs and limited floor area, so weigh running costs and space against the convenience and location.

Property Details

Brochure Descriptions

Image Descriptions

Floorplan Description

Rooms

Textual Property Features

Target Audience

AI Tags

Detected Visual Features

EPC Details

Nearby Schools

Nearest Bars And Restaurants

,,,,}

Nearest General Shops

,,}

Nearest Grocery shops

,,}

Nearest Supermarkets

,,}

Nearest Religious buildings

,,}

Nearest Medical buildings

,,,}

Nearest Airports

}

Nearest Leisure Facilities

,,,,}

Nearest Tourist attractions

,,}

Nearest Train stations

,,,,}

Nearest Bus stations and stops

,,,,}

Nearest Hotels

,,}

Tags

Local Market Stats

AirBnB Data

Similar Properties

Meta

High Res Images

Compatible Images

Low res Images

Thumbnails

Raw Images

High Res Floorplan Images

Compatible Floorplan Images

Low res Floorplan Images

FloorplanImages Thumbnail

Raw Floorplan Images