GU14 7WY - 2 bed ground floor two bed in Aldershot, GU14 7WY

View on Property Piper

2 bedroom apartment for sale in Wessex Court, Kestrel Road, Farnborough , GU14

Summary - Wessex Court, Kestrel Road, Farnborough , GU14 GU14 7WY

2 bed 2 bath Apartment

Well-located, low-maintenance flat ideal for commuters and first-time buyers.
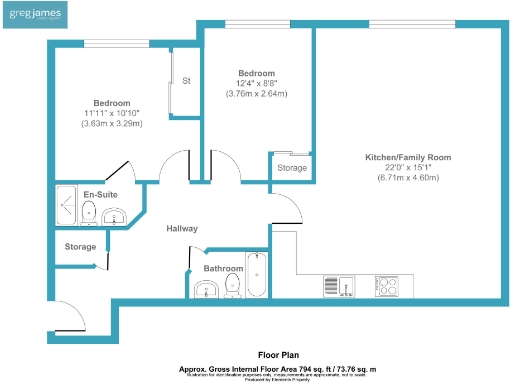
Ground-floor two-bedroom apartment with en-suite to master
Open-plan 22+ ft living area and modern fitted kitchen
Allocated parking plus visitor bays; communal grounds maintained
Healthy lease reported — confirm length and service charges
Approximately 794 sq ft; around seven rooms overall
0.7 miles to Farnborough Mainline Station; excellent mobile and broadband
No flood risk; area described as affluent
Local crime level reported as high — check security and insurance implications
A bright ground-floor apartment offering practical living near Farnborough Mainline, priced at £240,000. The open-plan 22+ ft living area and modern fitted kitchen create a social, easy-care home for a first-time buyer. The master bedroom includes an en-suite and built-in wardrobes; both bedrooms are doubles. The apartment is presented well with well-maintained communal grounds and allocated plus visitor parking.

Practical positives include a healthy lease, no flood risk, excellent mobile signal and fast broadband — useful for commuting and working from home. Local amenities, parks and a range of primary and secondary schools (including Outstanding and highly ranked independents) are within easy reach, and the mainline station is about 0.7 miles away.

Important factual drawbacks: the property is leasehold and therefore subject to lease terms and any service charges; check remaining lease length and charges. The local crime level is reported as high for the area — buyers should assess personal security and insurance implications. Overall size is average (approximately 794 sq ft) and the building is a mid-century block, which may appeal less to buyers seeking new-build finishes.

This apartment suits a first-time buyer wanting commuter convenience and low-maintenance living, or an investor seeking a lettable two-bedroom layout. Viewings are recommended to appreciate the space and layout in person.

Property Details

Image Descriptions

Floorplan Description

Rooms

Textual Property Features

Target Audience

AI Tags

Detected Visual Features

Nearby Schools

Nearest Bars And Restaurants

,,,,}

Nearest General Shops

,,}

Nearest Grocery shops

,,}

Nearest Supermarkets

,,}

Nearest Religious buildings

,,}

Nearest Medical buildings

,,,}

Nearest Airports

}

Nearest Leisure Facilities

,,,,}

Nearest Tourist attractions

,,}

Nearest Train stations

,,,,}

Nearest Bus stations and stops

,,,,}

Nearest Hotels

,,}

Tags

Local Market Stats

AirBnB Data

Similar Properties

Meta

High Res Images

Compatible Images

Low res Images

Thumbnails

Raw Images

High Res Floorplan Images

Compatible Floorplan Images

Low res Floorplan Images

FloorplanImages Thumbnail

Raw Floorplan Images