Character 4-bed cottage with panoramic bay views, garden to the shore and detached garage..
- Enviable shoreside position with uninterrupted Broadford Bay views
- Octagonal lounge and conservatory maximise panoramic outlook
- Four bedrooms, three with en-suite facilities
- Generous garden grounds extending down to the shore
- Detached double garage and parking for several vehicles
- EPC rating E (45); likely need energy improvements
- Mains services with drainage to septic tank (onsite management)
- Shared access track; council tax Band F (higher running costs)
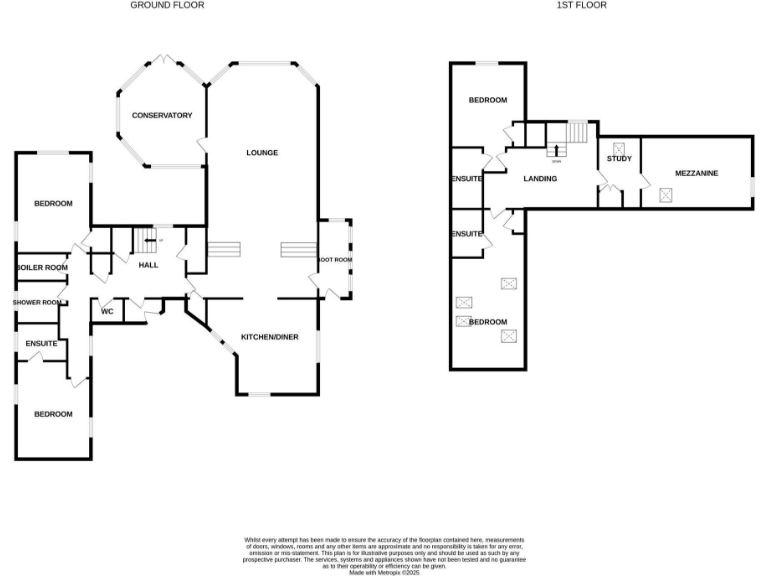
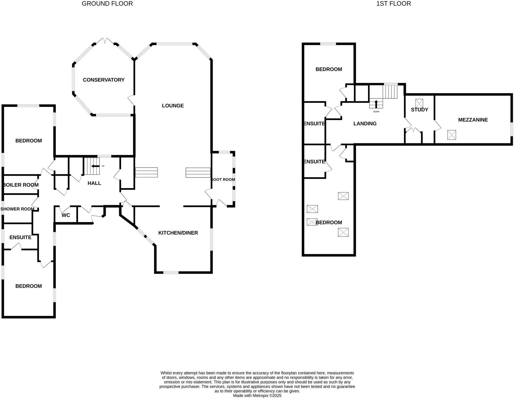
Sea Cottage is a traditional stone 4-bedroom home occupying an enviable shoreside position on Broadford Bay. The octagonal-ended lounge and conservatory capture uninterrupted sea and island views, while generous garden grounds sweep down to the shore — rare for the area. The house has been extended and upgraded over time, creating flexible family accommodation including three en-suite bedrooms and a detached double garage with off-road parking for several vehicles.
Practical features include double glazing, oil-fired central heating (Grant Vortex boiler), a lounge log-burning stove, mains services with drainage to a septic tank, excellent mobile signal and average broadband. The property is offered freehold and chain free, making it straightforward to progress. Access is via a shared track and the plot provides scope for garden improvement or modest income use given its location and size.
Buyers should note some material negatives: the EPC is rated E (45), heating is oil-fired and the property drains to a septic tank, which may influence running costs and future upgrade needs. Council Tax is band F (described as expensive locally), and the wider area is classified as very deprived, which may affect resale considerations and local services. Overall size is recorded as small with total square footage listed at 531 sq ft, so confirm the accommodation and measurements during viewing and pre-contract enquiries.
Sea Cottage will suit a buyer seeking a character seaside home with exceptional views and outside space — a family wanting room by the shore or someone prepared to invest in energy and service upgrades. Viewing is recommended to appreciate the location, outlook and garden that cannot be conveyed fully from description alone.
3 bedroom detached house for sale in Burnside Cottage, Sconser, Isle Of Skye, IV48 8TD, IV48 — £260,000 • 3 bed • 3 bath • 1324 ft²
2 bedroom cottage for sale in Peinchorran, Braes, Portree, Isle of Skye IV51 9LJ, IV51 — £235,000 • 2 bed • 1 bath
5 bedroom property for sale in Ashaig, Breakish, Isle of Skye, IV42 8PZ, IV42 — £370,000 • 5 bed • 4 bath • 1927 ft²
4 bedroom detached house for sale in Kilmore Teangue Isle Of Skye IV44 8RG, IV44 — £348,000 • 4 bed • 3 bath • 1812 ft²
3 bedroom cottage for sale in Kyleakin Isle Of Skye IV41 8PN, IV41 — £275,000 • 3 bed • 3 bath
3 bedroom cottage for sale in 8 Clachan, Isle Of Raasay, Kyle, Scotland, IV40 8PB, IV40 — £345,000 • 3 bed • 2 bath • 316 ft²


























































































































































































































































