Well‑presented holiday income opportunity with planning for parking.
Panoramic, unrestricted Inner Sound and Raasay views
Previously successful holiday let with STL licence in place
Full planning approved for parking formation (REF 24/04789/FUL)
Generous, well‑maintained garden grounds with mature trees
EPC rating very low: G (17) — energy upgrades likely needed
Very slow broadband; average mobile signal in the area
Drainage to septic tank; remoter community, limited local services
Currently commercially rated for council tax
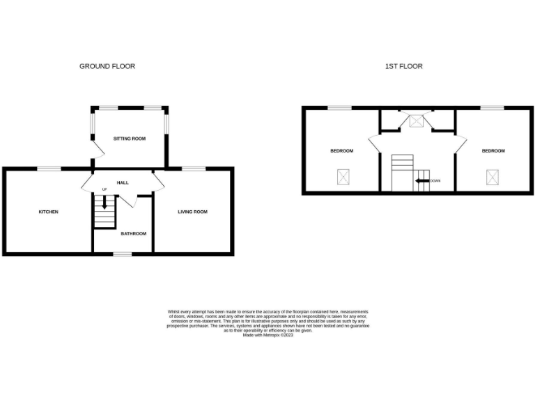
Gramayre Cottage is an immaculately presented 1.5‑storey stone cottage in elevated Peinchorran, with sweeping, unrestricted views across the Inner Sound to Raasay and the mainland. The property is in excellent order throughout, occupies generous well‑maintained garden grounds, and extends to around 77 m² with two bedrooms, a sitting room, kitchen/dining and shower/bathroom. It has a track record as a successful holiday let and retains an STL licence, offering immediate short‑term rental potential.
Practical positives include uPVC double glazing, electric storage and panel heating, mains electricity and water, and an attached corrugated shed plus a small timber shed. Full planning permission was granted on 10 March 2025 (Highland Council REF 24/04789/FUL) for the formation of a parking space, valid for three years — a material enhancement in a location where roadside parking is currently limited.
Buyers should note clear drawbacks alongside the strengths: the EPC rating is very low (G, 17), broadband speeds are very slow and mobile signal is only average. Drainage is to a septic tank and the property is in a remoter, very deprived area, which may limit year‑round rental demand and resale comparables. Council tax is currently commercially rated. Overall, this cottage suits buyers seeking a scenic holiday income property or a character rural home, willing to accept/upgrade energy performance and connectivity to maximise future return.
2 bedroom detached bungalow for sale in Dunan, Broadford, Isle Of Skye IV49 9AJ, IV49 — £195,000 • 2 bed • 2 bath
3 bedroom detached house for sale in Glencairn, 4 Torvaig, Portree, Isle of Skye, IV51 9HU, IV51 — £215,000 • 3 bed • 1 bath • 1140 ft²
3 bedroom farm house for sale in Portree ISLE OF SKYE, IV51 — £725,000 • 3 bed • 2 bath • 667 ft²
3 bedroom cottage for sale in 8 Clachan, Isle Of Raasay, Kyle, Scotland, IV40 8PB, IV40 — £345,000 • 3 bed • 2 bath • 316 ft²
3 bedroom detached house for sale in Burnside Cottage, Sconser, Isle Of Skye, IV48 8TD, IV48 — £260,000 • 3 bed • 3 bath • 1324 ft²
2 bedroom end of terrace house for sale in 12 Creag An Iolaire, Portree, Isle of Skye, IV51 9HN, IV51 — £185,000 • 2 bed • 1 bath • 646 ft²


































































