**Standout Features:**
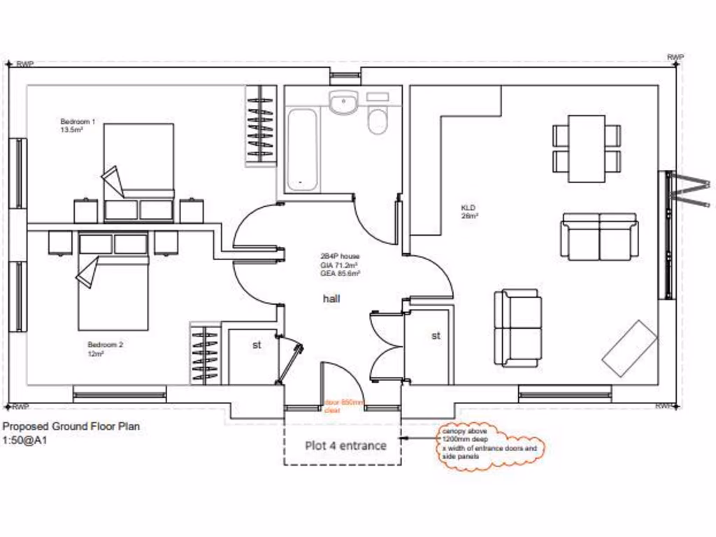
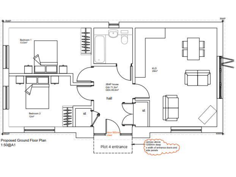
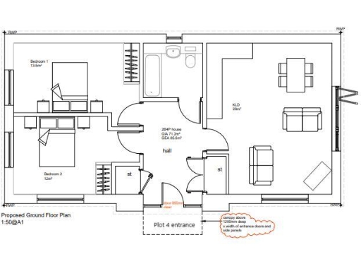
- Two-bedroom, single-storey bungalow
- Under construction with anticipated completion in October 2025
- Open-plan kitchen, dining, and living area extending over 1,300 sq ft
- Eco-friendly features including EV charging points and solar panels
- Customization options for flooring and wall colors (subject to early reservation)
- Generous allocated parking (2 spaces) and cycle storage
- Located in the tranquil rural village of West Farleigh
**Potential Downsides:**
- Currently under construction (future buyers must wait for completion)
- Information is subject to change based on construction updates
Nestled in the serene village of West Farleigh, this charming two-bedroom bungalow offers a unique opportunity for modern living in a tranquil setting. With its anticipated completion in October 2025, buyers can customize their interior choices, including carpets and wall colors, to suit their personal style. The spacious open-plan design combines a well-appointed kitchen, dining, and living area, perfect for families or those seeking a cozy retreat.
On the eco-friendly side, enjoy features like EV charging points and solar panels, ensuring energy efficiency and sustainability. With allocated off-road parking for two vehicles, plus additional cycling storage, convenience is paramount. Surrounded by beautiful landscapes, this property offers the ideal blend of rural charm and modern amenities. Act fast to secure your place in this exclusive complex—opportunities like this are rare!
2 bedroom terraced house for sale in Charlton Lane, West Farleigh, Maidstone, ME15 — £500,000 • 2 bed • 1 bath • 1301 ft²
2 bedroom bungalow for sale in Charlton Lane, West Farleigh, Maidstone, ME15 — £450,000 • 2 bed • 1 bath • 1400 ft²
2 bedroom terraced house for sale in Charlton Lane, West Farleigh, Maidstone, ME15 — £475,000 • 2 bed • 1 bath • 1300 ft²
2 bedroom house for sale in Charlton Lane, West Farleigh, Maidstone, ME15 — £450,000 • 2 bed • 1 bath • 712 ft²
2 bedroom detached bungalow for sale in Beckenham Drive, Maidstone, ME16 — £375,000 • 2 bed • 1 bath • 674 ft²
3 bedroom detached bungalow for sale in White House Farm Gardens, Stile Bridge Lane, Linton, Maidstone, Kent, ME17 — £550,000 • 3 bed • 2 bath • 795 ft²


























