Eco-friendly single-level living on a huge plot in a peaceful semi-rural location..
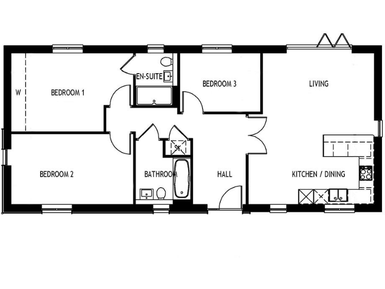
Single-level 3-bed detached bungalow with open-plan living
Solar panels and electric car charging point included
Large private plot and low-maintenance gardens for entertaining
10-year structural warranty on new build
Modest internal size (~795 sq ft) — compact layout
Very slow broadband speeds locally — may affect home working
Last remaining plot in a small gated cluster of four
Freehold, no flood risk; short drive to local shops and mainline stations
This detached three-bedroom bungalow offers comfortable single-level living finished to a modern standard on an exclusive cluster of four new homes. The open-plan kitchen/living area with bi-fold doors flows to a sizeable rear garden, creating an easy entertaining layout and a bright, sociable heart to the house. Eco credentials include rooftop solar panels and an electric car charging point, plus a 10-year structural warranty for added peace of mind.
Set in a quiet semi-rural location on the outskirts of neighbouring villages, the property delivers countryside calm while remaining a short drive from local shops and mainline stations at Staplehurst and Marden. The plot is unusually large for a small development, giving scope for gardening, outdoor hobbies or future landscaping. Off-street parking and a private driveway add practical convenience.
Important practical points: the internal living space is modest (circa 795 sq ft) so the layout is compact; this is the last plot in a small gated cluster of four, so the community is limited. Broadband speeds in the immediate area are reported as very slow, which may affect home working. Images are of the show home for illustration; finishes and layouts may vary and buyers should verify specifications and fittings prior to purchase.
2 bedroom detached bungalow for sale in Stanhope Close, Maidstone, Kent, ME14 — £350,000 • 2 bed • 1 bath • 668 ft²
4 bedroom detached house for sale in Firs Lane, Hollingbourne, The Firs, Hollingbourne, Maidstone, Kent, ME17 — £775,000 • 4 bed • 2 bath • 1061 ft²
3 bedroom detached house for sale in Ash Lodge, Little Randolphs Farm, Biddenden, TN27 — £750,000 • 3 bed • 2 bath • 1178 ft²
2 bedroom bungalow for sale in Crompton Gardens, Maidstone, Kent, ME15 — £400,000 • 2 bed • 2 bath • 872 ft²
4 bedroom detached house for sale in Firs Lane, Hollingbourne, The Firs, Hollingbourne, Maidstone, Kent, ME17 — £1,000,000 • 4 bed • 2 bath • 888 ft²
3 bedroom detached bungalow for sale in Pond Hill, Cliffe, Rochester, Kent, ME3 — £550,000 • 3 bed • 2 bath • 1465 ft²


















































