TQ9 6NN - 3 bedroom barn conversion for sale in Barton Leys, Berry Po…

View on Property Piper

3 bedroom barn conversion for sale in Barton Leys, Berry Pomeroy, TQ9

Summary - ST GILES, 10 BARTON LEYS BERRY POMEROY TOTNES TQ9 6NN

3 bed 2 bath Barn Conversion

**Standout Features:**
- Beautifully presented three-bedroom barn conversion
- Private garden with landscaped patio and pond features
- Modern open-plan kitchen with integrated appliances
- Two allocated parking spaces in a desired village location
- No forward chain for a quick sale

**Key Details:**
- Location: Berry Pomeroy, close to Totnes
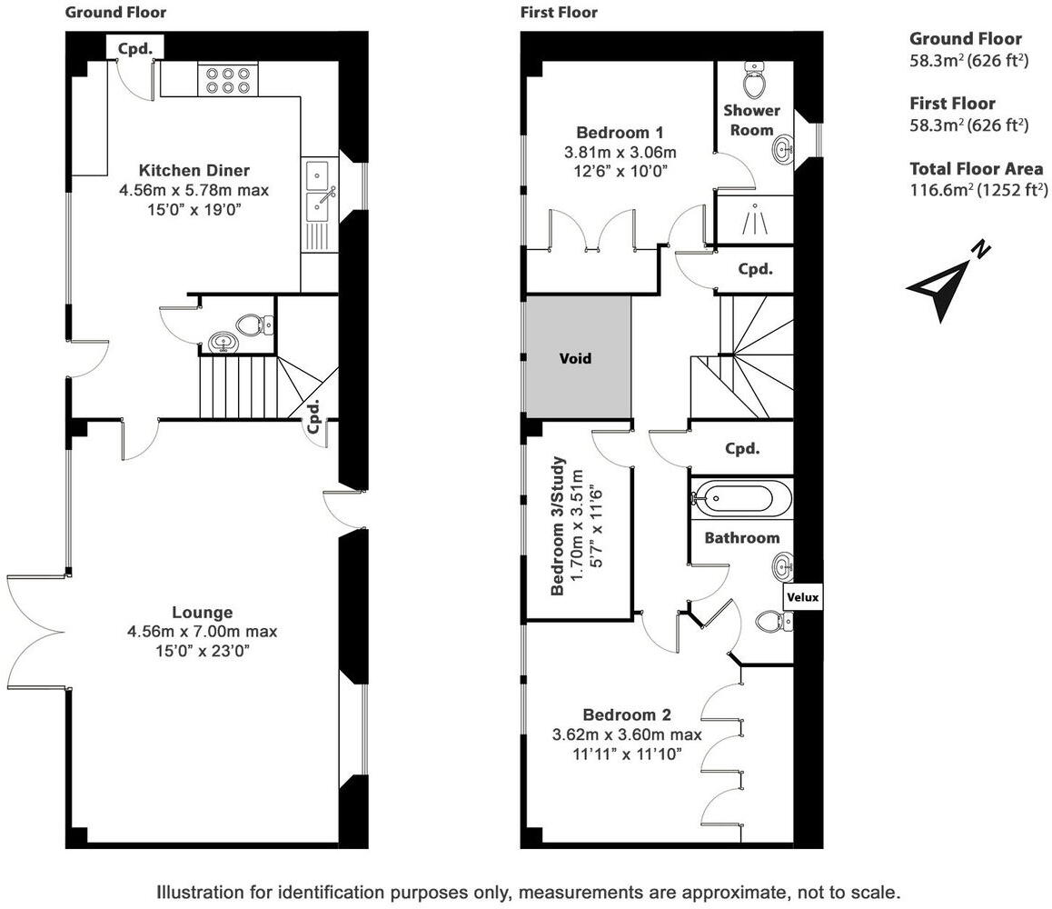
- Size: 1,252 sq ft with generous room sizes
- Heating: Underfloor heating and mains gas
- Council Tax Band: F
- Built: 2003-2006
- Broadband: Fast FTTP connection

Discover the charm of this stunning three-bedroom barn conversion in the sought-after village of Berry Pomeroy, near Totnes. This freehold property is beautifully presented throughout, featuring a light-filled dual-aspect reception room and an inviting open-plan kitchen/dining area, ideal for family living and entertaining. The contemporary finish retains the character of barn-style architecture with vaulted ceilings, oak doors, and plenty of natural light.

Step outside to enjoy a private, landscaped garden with a delightful patio space perfect for alfresco dining or relaxing among nature, complemented by tranquil pond features. With two allocated parking spaces and communal gardens available, convenience and comfort are assured.

This property is chain-free, making it the perfect opportunity for families, first-time buyers, or investors seeking a peaceful rural lifestyle with easy access to local amenities and the vibrant town of Totnes just a short drive away. Don’t miss out on this exclusive opportunity to own a slice of countryside elegance.

Property Details

Brochure Descriptions

Image Descriptions

Rooms

Textual Property Features

Detected Visual Features

EPC Details

Nearby Schools

Nearest Bars And Restaurants

,,,,}

Nearest General Shops

,,}

Nearest Grocery shops

,,}

Nearest Supermarkets

,,}

Nearest Religious buildings

,,}

Nearest Medical buildings

,,,}

Nearest Leisure Facilities

,,,,}

Nearest Tourist attractions

,,}

Nearest Train stations

,,,,}

Nearest Bus stations and stops

,,,,}

Nearest Hotels

,,}

Tags

Local Market Stats

AirBnB Data

Similar Properties

Meta

High Res Images

Compatible Images

Low res Images

Thumbnails

Raw Images

High Res Floorplan Images

Compatible Floorplan Images

Low res Floorplan Images

FloorplanImages Thumbnail

Raw Floorplan Images