G83 9PN - 3 bedroom detached villa for sale in 1 Kirstie Place, Alexa…

View on Property Piper

3 bedroom detached villa for sale in 1 Kirstie Place, Alexandria G83 9PN, G83

Summary - 20, KIRSTIE PLACE, ALEXANDRIA G83 9PN

3 bed 1 bath Detached Villa

Spacious three-bedroom detached home with garden, parking and extension potential..
- Detached three-bedroom villa on a prominent corner plot
- Private rear garden with elevated patio and enclosed lawn
- Driveway parking for three vehicles plus integral garage
- Modern fitted kitchen and tiled three-piece bathroom
- Gas central heating, double glazing and CCTV installed
- Single bathroom only; three bedrooms share one bath
- Possibility to extend or convert garage subject to planning
- Located in a more deprived area; council tax moderate
A well-proportioned three-bedroom detached villa on a prominent corner plot, offering family-focused accommodation and off-road parking for up to three cars. The house sits in a comfortable suburban setting close to Alexandria and Dumbarton amenities, with pleasant open outlooks and easy access to Loch Lomond’s leisure attractions.

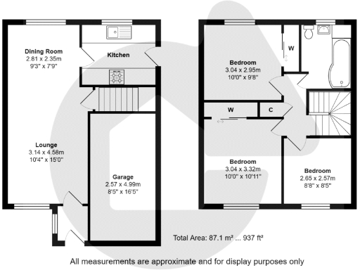
Internally the layout is traditional and practical: entrance hall, main lounge, separate dining room and a modern fitted kitchen with side access to the private rear garden. Upstairs provides three bedrooms and a modern tiled bathroom. The property benefits from gas central heating, double glazing and CCTV around the exterior.

The plot size and corner position present clear potential — there is scope to extend to the rear or convert the integral garage into additional living space, subject to planning and building warrant. Buyers should note the house is average-sized at about 1,000 sq ft, has a single bathroom, and sits within an area classified as more deprived than surrounding zones. Council tax costs are moderate.

This home will suit families seeking a straightforward, ready-to-live-in detached house with scope to personalise and extend. It is also practical for commuters with excellent mobile and fast broadband speeds and convenient public transport nearby.

Property Details

Brochure Descriptions

Image Descriptions

Floorplan Description

Rooms

Textual Property Features

Target Audience

AI Tags

Detected Visual Features

Nearest Bars And Restaurants

,,,,}

Nearest General Shops

,,}

Nearest Grocery shops

,,}

Nearest Supermarkets

,,}

Nearest Religious buildings

,,}

Nearest Medical buildings

,,,}

Nearest Airports

,}

Nearest Leisure Facilities

,,,,}

Nearest Tourist attractions

,,}

Nearest Train stations

,,,,}

Nearest Bus stations and stops

,,,,}

Nearest Hotels

,,}

Tags

Local Market Stats

Similar Properties

Meta

High Res Images

Compatible Images

Low res Images

Thumbnails

Raw Images

High Res Floorplan Images

Compatible Floorplan Images

Low res Floorplan Images

FloorplanImages Thumbnail

Raw Floorplan Images