Ready-to-build 1.7-acre plot with planning for 18 small units near the A1.
Full planning for 18 industrial units (circa 23,625 sq ft total)
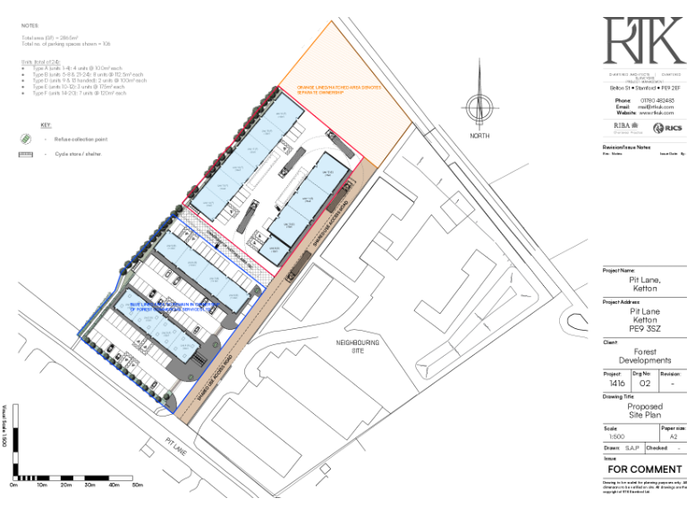
This cleared 1.7-acre freehold plot in Ketton is offered with full planning for 18 small industrial units (circa 23,625 sq ft). The land is level, serviced by a shared in-and-out access road suitable for large vehicles and lorries, and adjoins a recently built, fully occupied industrial park — a clear indicator of local demand.
The site suits developers or investors targeting light industrial / trade-counter letting. The planning consent covers units approximately 100–175 sq m each, with parking and manoeuvring space factored into the layout. Its proximity to the A1 (under 2 miles) supports regional distribution and trade uses.
Buyers should note practical constraints: the site is undeveloped and will require full construction, connections to utilities and confirmation of business rates (rates TBC). Broadband speeds are very slow and mobile signal is average, which may affect some occupiers. VAT is not applicable and the freehold is offered with a guide price of £950,000.
Overall this is a ready-to-develop commercial plot in a low-crime, affluent rural fringe location offering immediate planning-led uplift potential, balanced by the usual build and services costs associated with new industrial development.
Land for sale in Ashwell Business Park, Oakham LE15 7QJ, LE15 — £600,000 • 1 bed • 1 bath • 5200 ft²
Land for sale in Land South of Occupation Road, South Witham, Grantham, Lincolnshire, NG33 — POA • 1 bed • 1 bath
Land for sale in Stamford Gateway, Empingham Road, Stamford, PE9 2XP, PE9 — POA • 1 bed • 1 bath
Land for sale in Development Land, The Slipe, Bourne, PE10 0DE, PE10 — POA • 1 bed • 1 bath
Commercial development for sale in 0.90 Acres Of Potential Development Land, Stamford Road, Easton-on-the-Hill, Stamford, Northamptonshire, PE9 3NS, PE9 — £500,000 • 1 bed • 1 bath
Commercial property for sale in Units F2 & F4 Ironstone Lane Industrial Estate, Market Overton, Oakham LE15 7TP, LE15 — £180,000 • 1 bed • 1 bath • 2320 ft²






















