Large plot and parking; refurbishment opportunity near village amenities.
Chain free probate sale — probate applied for
Requires complete modernisation throughout
Generous gardens with patio and established shrubbery
Long driveway providing multiple off-road parking spaces
Attached garage; gardener’s external WC present
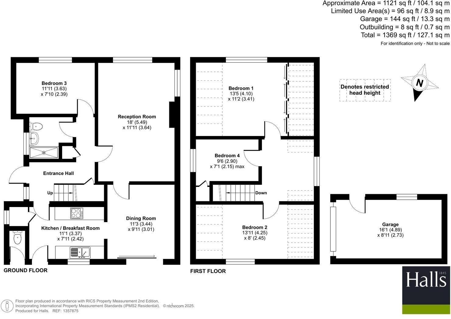
Four bedrooms but only one fitted bathroom currently
Oil-fired boiler and radiators; double-glazed windows
Convenient walking distance to village shops, surgeries, schools
This spacious four-bedroom chalet bungalow sits on a large, well-stocked plot in Pontesbury, within easy walking distance of village amenities and schools. The property offers generous ground-floor living with additional first-floor bedrooms, large windows, and a sun terrace opening onto extensive lawns — ideal for family life or those seeking roomy single-level living with extra sleeping space upstairs.
The house is sold chain free as a probate sale and requires a full programme of modernisation; dated fixtures, carpets and surfaces remain throughout. Practical positives include a long driveway with parking for numerous vehicles, an attached garage, double glazing and oil-fired radiator heating. There is scope to reconfigure the upstairs space to add a second bathroom.
For buyers looking for potential, the property’s size, plot and location deliver clear upside after refurbishment — suitable for a growing family, an investor targeting refurbishment uplift, or downsizers wanting space. Note the sale is subject to grant of probate. Services are understood to be connected but have not been tested.
3 bedroom detached bungalow for sale in 37 Ashford Drive, Pontesbury, Shrewsbury, SY5 0QR, SY5 — £375,000 • 3 bed • 1 bath • 1491 ft²
4 bedroom detached house for sale in 14 Ashford Drive, Pontesbury, Shrewsbury, SY5 0QR, SY5 — £395,000 • 4 bed • 1 bath • 1614 ft²
2 bedroom detached bungalow for sale in 8 Ashford Drive, Pontesbury, Shrewsbury, SY5 0QP, SY5 — £325,000 • 2 bed • 1 bath • 1054 ft²
3 bedroom detached bungalow for sale in Ashford Park, Pontesbury, Shrewsbury, SY5 — £270,000 • 3 bed • 1 bath • 767 ft²
4 bedroom detached house for sale in Dalewood, Shrewsbury Road, Pontesbury, Shrewsbury, SY5 0QA, SY5 — £500,000 • 4 bed • 1 bath • 1914 ft²
2 bedroom detached bungalow for sale in Ashford Drive, Pontesbury, Shrewsbury, SY5 — £325,000 • 2 bed • 1 bath • 1054 ft²














































































