**Standout Features:**
- Spacious executive detached property with seven bedrooms
- Currently generating approximately £70,000 per annum as serviced accommodation
- Potential for further extension due to previously granted planning permission
- Off-street parking and dedicated car park included
- No onward chain and option to purchase the business associated with the property
**Property Summary:**
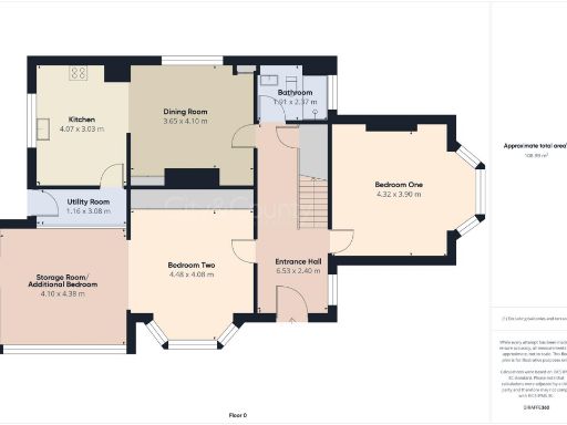
This exceptional executive detached property on Oundle Road presents a lucrative investment opportunity in the heart of Peterborough, currently operating as a successful serviced accommodation. With seven well-appointed bedrooms, the property can comfortably sleep up to fourteen guests, making it perfect for short-term rentals or corporate housing.
Inside, the generous layout includes a modern kitchen with integrated appliances, a spacious dining area, additional storage, and two well-maintained bathrooms alongside an en-suite. The highlight is a bright living area with high ceilings and charming architectural details. Outdoors, a large garden and dedicated car park enhance room for leisure and convenience.
Located in a thriving area with excellent transport links and amenities, this property not only offers immediate rental potential but also provides the promise of future development with planning permission already in place. Appealing to both seasoned investors and first-time buyers alike, the combination of no forward chain and a strong income stream makes this a must-see property that won’t last long in today’s market.
5 bedroom detached house for sale in Palmers Road, Fengate, Peterborough, PE1 — £750,000 • 5 bed • 3 bath • 770 ft²
7 bedroom detached house for sale in Broadway, Peterborough, PE1 — £950,000 • 7 bed • 4 bath • 2103 ft²
4 bedroom detached house for sale in Park Road, Peterborough, PE1 — £600,000 • 4 bed • 3 bath • 1814 ft²
5 bedroom detached house for sale in Highfields Grange, Orton Longueville, Peterborough, PE2 — £775,000 • 5 bed • 4 bath • 2712 ft²
7 bedroom detached house for sale in Loch Fyne Close, Orton Northgate, Peterborough, PE2 — £750,000 • 7 bed • 4 bath • 3225 ft²
4 bedroom end of terrace house for sale in Eastfield Road, Peterborough, PE1 — £350,000 • 4 bed • 3 bath • 2752 ft²






































































































