Central Peterborough location with large garden and garage, ready for personalisation.
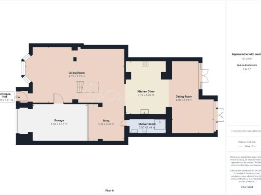
- Substantial 2,752 sq ft period house with high ceilings
- Four bedrooms, three bathrooms including en-suite to master
- Long enclosed garden suitable for outdoor annex or landscaping
- Integral garage plus block-paved driveway for at least two cars
- Chain free sale; freehold tenure
- Requires light refurbishment; likely insulation and cosmetic works
- EPC C (69) but solid brick walls probably uninsulated
- Local area: higher crime levels and very deprived ward
A rare central Peterborough period house offering exceptional space and original character. With approximately 2,752 sq ft across multiple reception rooms and four bedrooms, the layout suits busy family life and flexible working-from-home arrangements. High ceilings, bay windows and exposed brickwork give the home strong period appeal.
The property includes an integral garage, block-paved driveway for at least two cars and a long enclosed rear garden — large enough for a garden annex or extensive landscaping. Two bathrooms plus an en-suite to the principal bedroom make mornings easier for larger households.
The house is offered chain free but does require light refurbishment throughout; the vendor describes it as needing updating rather than full reconstruction. The property has solid brick walls (likely uninsulated as built) and double glazing of unknown age — buyers should factor potential thermal and maintenance works into budgets. EPC rating C is recorded.
Location is central, close to several well-rated schools, Central Park and Peterborough University. This makes it attractive to growing families and investors, though the immediate area records higher crime statistics and is in a very deprived ward — buyers should consider local conditions and any Selective Licensing requirements before purchase.
Overall this is a substantial, characterful freehold home with clear scope to improve value through sympathetic refurbishment or conversion of external space. Practical buyers will want a survey to cost any heating, insulation, damp or electrical updates before committing.
5 bedroom detached house for sale in Broadway Gardens, Peterborough, PE1 — £725,000 • 5 bed • 3 bath • 2099 ft²
4 bedroom detached house for sale in Kedleston Road, Peterborough, PE2 — £350,000 • 4 bed • 2 bath • 1484 ft²
4 bedroom detached house for sale in Broadway Gardens, Peterborough, PE1 — £700,000 • 4 bed • 3 bath • 2078 ft²
7 bedroom detached house for sale in Broadway, Peterborough, PE1 — £950,000 • 7 bed • 4 bath • 2103 ft²
6 bedroom detached house for sale in Broadway, Peterborough, PE1 — £685,000 • 6 bed • 5 bath • 3000 ft²
4 bedroom detached house for sale in Crown Street, Peterborough, PE1 — £280,000 • 4 bed • 2 bath • 1455 ft²






















































































