Sunny garden flat near town and lifeboat — ideal for a personalised renovation.
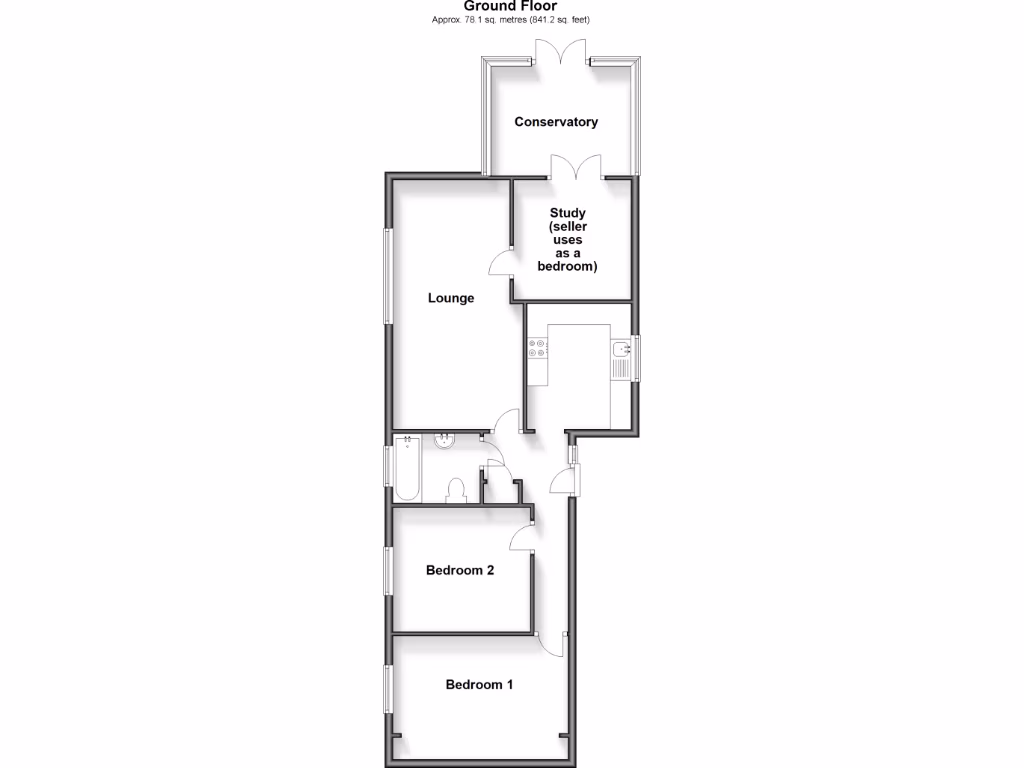
Ground-floor two-bedroom flat with conservatory and private enclosed garden
This ground-floor two-bedroom flat sits along a quiet lane in Bembridge, a short walk from the lifeboat station and the town centre. A sunny conservatory leads out to a private, enclosed rear garden and there is off-street parking for two cars to the front — a rare find for a flat. The layout is traditional and practical, with a good-sized principal bedroom and a separate study room useful for home working.
The property needs modernisation throughout, so it will suit someone happy to refurbish and personalise rather than move in immediately. There is double glazing in place (installed before 2002) and gas central heating via a boiler and radiators, but the walls are assumed to have no cavity insulation and some finishings look worn. The lease is long (circa 904 years) and the service charge is low at £10, with affordable council tax and fast broadband, supporting everyday living and potential holiday-let use if permitted.
For a first-time buyer this is an opportunity to create a comfortable Island home within an affluent, low-crime neighbourhood close to good primary schools and local amenities. Be realistic about the renovation work required and factor those costs into your offer. With its garden, conservatory and parking, the flat offers lifestyle benefits that many flats cannot match.
2 bedroom flat for sale in Lane End Road, BEMBRIDGE, Isle of Wight, PO35 — £150,000 • 2 bed • 1 bath • 843 ft²
2 bedroom apartment for sale in High Street, Bembridge, PO35 — £190,000 • 2 bed • 1 bath • 677 ft²
2 bedroom flat for sale in Highbury Court, Lane End Rd, Bembridge, PO35 — £169,950 • 2 bed • 1 bath • 722 ft²
2 bedroom flat for sale in High Street, Bembridge, PO35 — £150,000 • 2 bed • 1 bath • 496 ft²
2 bedroom flat for sale in Ryde, PO33 — £135,000 • 2 bed • 1 bath • 415 ft²
2 bedroom flat for sale in Simeon Street, Ryde, Isle of Wight, PO33 — £130,000 • 2 bed • 1 bath • 703 ft²










































