Large redevelopment opportunity close to universities and transport.
Freehold high‑street retail with basement producing c. £26,000 pax income
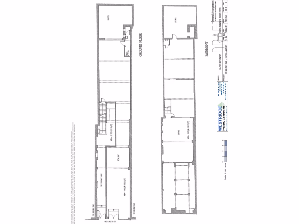
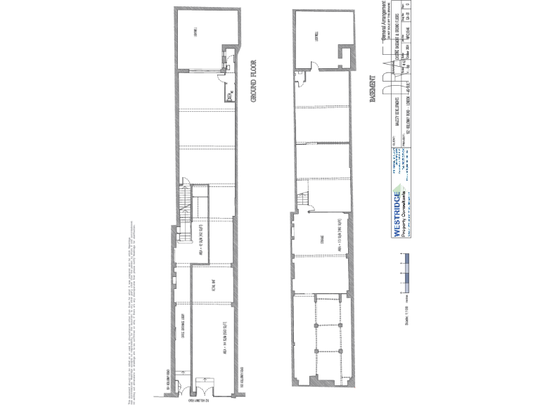
Situated on a highly prominent stretch of Holloway Road, this freehold high‑street building generates immediate retail income from a let ground floor and basement at c. £26,000 pax. The self‑contained first, second and third floor offices are vacant and offer clear scope for refurbishment, conversion to residential flats or further commercial use. A pre‑application has been submitted for a mixed‑use refurbishment and an extension creating three flats while retaining first‑floor offices; plans are available on request.
The property is attractive to investors or developers seeking a central, well‑connected asset with redevelopment upside. Public transport is excellent (Piccadilly and Victoria lines within walking distance) and nearby institutional occupiers and retail footfall support future lettings. There is potential to add an additional rear floor subject to planning consent, which would increase usable area and rental value if approved.
Buyers should note material constraints: the upper floors are vacant and will require fit‑out or conversion works to realise value. The site lies in an area with high recorded crime and broader deprivation indicators, and the plot offers no private external amenity. Any extension or change of use is subject to planning approval and building‑regulation compliance. The sale price reflects both the current income and the redevelopment potential, offered as a single freehold lot.
Commercial property for sale in 82-84 Seven Sisters Road, Holloway, N7 6AE, N7 — £1,750,000 • 1 bed • 1 bath • 2776 ft²
Land for sale in Junction Road, London, N19 — £1,400,000 • 1 bed • 1 bath • 539 ft²
Office for sale in Georges Road, Holloway, Islington, London, N7 — £1,250,000 • 1 bed • 1 bath • 2121 ft²
High street retail property for sale in 2 Wellington Terrace, Turnpike Lane, London, N8 0PX, N8 — £850,000 • 1 bed • 1 bath • 2116 ft²
High street retail property for sale in Retail Unit & Flats, 154-156 Stoke Newington High Street, London, N16 7JL, N16 — £3,850,000 • 1 bed • 1 bath • 11224 ft²
Commercial property for sale in Holloway Road, Upper Holloway, N19 — £950,000 • 1 bed • 1 bath • 1145 ft²


















































