IP31 3QF - 3 bedroom detached house for sale in Norton Road, Thurston,…

View on Property Piper

3 bedroom detached house for sale in Norton Road, Thurston, Bury St. Edmunds, IP31

Summary - 2 RYLANDS CLOSE THURSTON BURY ST EDMUNDS IP31 3QF

3 bed 2 bath Detached

**Standout Features:**
- Brand new three-bedroom detached house on a large corner plot
- Expansive open-plan kitchen/dining area with modern finishes
- Separate lounge and study, offering flexible living spaces
- Master bedroom with en-suite, plus family bathroom and cloakroom
- Garage and off-road parking, with provision for car charging and PV solar panels
- Waste Water Heat Recovery System (WWHR) for eco-friendly efficiency
- Chain-free purchase for a smooth transition

**Summary:**
Discover the perfect family home in the popular Suffolk village of Thurston with this brand new, spacious three-bedroom detached house. Boasting a generous corner plot, you will enjoy a large open-plan kitchen/dining area bathed in natural light, along with a separate lounge and dedicated study for remote work or leisure. The master bedroom features an en-suite, and a family bathroom meets the needs of all occupants. With modern environmental features, including solar panels and a Waste Water Heat Recovery System, this property combines comfort with sustainability.

Conveniently located just 7 miles from Bury St Edmunds, this home offers excellent transport links and nearby amenities, including quality educational institutions and recreational areas. The property is chain-free and is presented in move-in condition, making it an ideal choice for families or first-time buyers looking to settle in a tranquil yet vibrant community. Don’t miss out on this remarkable opportunity—visit today while the show home is open daily and envision your future in this desirable home!

Property Details

Image Descriptions

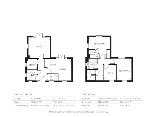
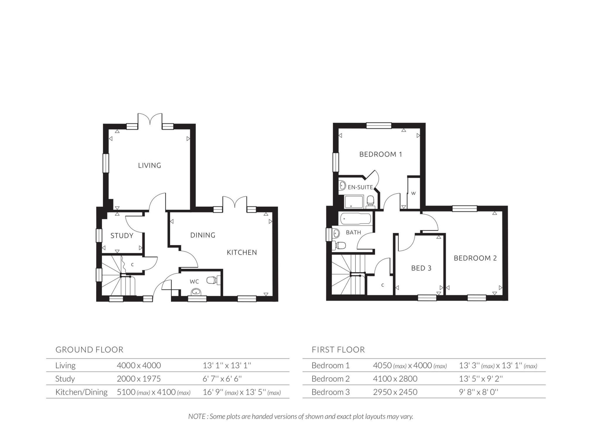
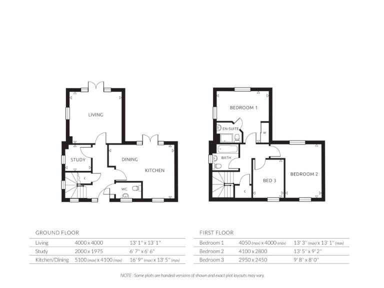
Floorplan Description

Rooms

Textual Property Features

Detected Visual Features

Nearby Schools

Nearest Bars And Restaurants

,,,,}

Nearest General Shops

,,}

Nearest Grocery shops

,,}

Nearest Supermarkets

,,}

Nearest Religious buildings

,,}

Nearest Medical buildings

,,,}

Nearest Leisure Facilities

,,,,}

Nearest Tourist attractions

,,}

Nearest Train stations

,,,,}

Nearest Bus stations and stops

,,,,}

Nearest Hotels

,,}

Tags

Local Market Stats

Similar Properties

Meta

High Res Images

Compatible Images

Low res Images

Thumbnails

Raw Images

High Res Floorplan Images

Compatible Floorplan Images

Low res Floorplan Images

FloorplanImages Thumbnail

Raw Floorplan Images