Large plot, period character and strong renovation potential in Castlecroft.
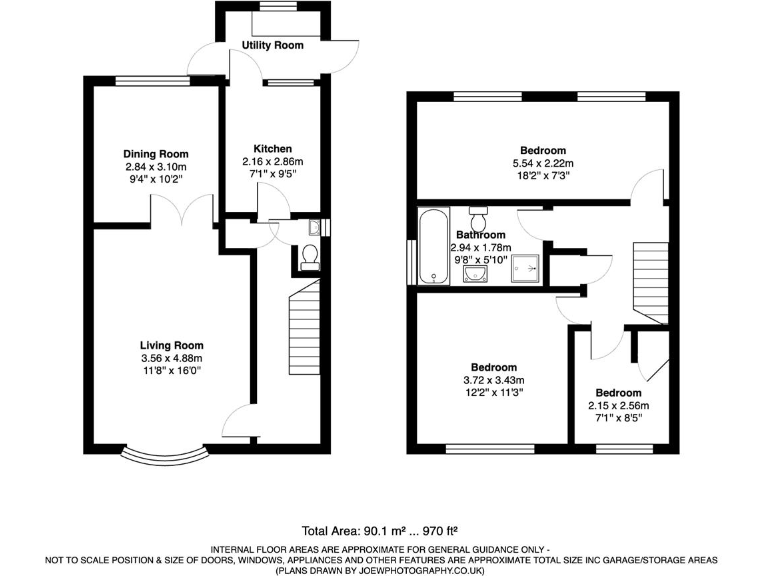
- Detached three-bedroom home, originally a four-bedroom (reversible)
- Large private rear garden with open outlook
- Block-paved driveway, carport and garage, ample parking
- Generous room sizes across two storeys, traditional layout
- Interior dated (1970s fittings, floral carpets) and needs modernisation
- Cavity walls as built — likely no insulation (energy upgrade opportunity)
- Single family bathroom and guest cloakroom only
- Freehold; mains gas heating and connected services
Set on a very large plot in sought-after Castlecroft, this three-bedroom detached home was originally laid out as a four-bedroom and can be reinstated to increase sleeping accommodation. Rooms are generous in scale, with a bay-front lounge, separate dining room and a breakfast kitchen that leads through to a practical utility. The private rear garden enjoys an open, leafy outlook and the drive, carport and garage provide plentiful off-street parking for family life.
The house shows clear 1970s character — stone fireplace, floral carpet and dated fittings — which will suit buyers looking for period charm or a renovation project. Structural elements are conventional for the era: cavity walls (no added insulation assumed) and double glazing of unknown age. Heating is mains gas with boiler and radiators; mains services are connected and the property is freehold.
Practical benefits include good broadband and excellent mobile signal, nearby good primary schools, easy access to Bantock Park and local amenities, plus a sensible Council Tax band. Important points to note: the interior requires updating to modern standards and energy efficiency could be improved (cavity walls likely uninsulated). For families wanting space and scope to add value, or investors seeking a refurbishment opportunity in a popular suburb, this property offers solid potential.
4 bedroom detached house for sale in Windmill Lane, Castlecroft, Wolverhampton, WV3 — £440,000 • 4 bed • 1 bath
4 bedroom detached house for sale in Castlecroft Road, Castlecroft, Wolverhampton, WV3 — £475,000 • 4 bed • 1 bath • 1228 ft²
3 bedroom semi-detached house for sale in Bhylls Crescent, Castlecroft, Wolverhampton, WV3 — £285,000 • 3 bed • 1 bath • 1002 ft²
6 bedroom detached house for sale in 1 Castlecroft Lane, Wightwick, Wolverhampton, WV3 8JX, WV3 — £675,000 • 6 bed • 2 bath • 2161 ft²
3 bedroom semi-detached house for sale in Windsor Gardens, Castlecroft, Wolverhampton, West Midlands, WV3 — £280,000 • 3 bed • 2 bath • 1157 ft²
4 bedroom semi-detached house for sale in Windsor Gardens, Castlecroft, Wolverhampton, WV3 — £315,000 • 4 bed • 1 bath • 1174 ft²


































































