Four-bedroom detached family house with garage, large garden and strong commuter links in Kingswood.
Four-bedroom detached family home with en-suite to principal bedroom
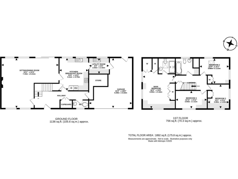
Set on a generous plot in sought-after Kingswood, this four-bedroom detached house offers flexible family living across two floors. The ground floor features a bright open-plan sitting and dining room, a modern kitchen with breakfast area, adjoining utility and internal access to the integral garage — practical for everyday life and entertaining.
Upstairs provides four well-proportioned bedrooms, including a main bedroom with fitted wardrobes and an en-suite shower room, plus a family bathroom. Double glazing (installed post-2002) and a mains-gas boiler with radiators provide comfortable, efficient heating and good thermal performance for the era of construction.
The large driveway and integral garage deliver substantial off-street parking, and the private rear garden offers space for children, gardening or future extension (subject to consents). Excellent commuter links, local shops, leisure facilities and a range of schools make this a strong option for families or buyers needing easy access to London.
Note the house was built 1976–82 and has cavity walls with only partial insulation; further insulation or modernisation could improve energy efficiency. Council tax is described as quite expensive. Overall, the property presents a roomy family home in good order with potential to update and add value over time.
4 bedroom detached house for sale in Forest Drive, Kingswood, KT20 — £1,350,000 • 4 bed • 3 bath • 2344 ft²
4 bedroom end of terrace house for sale in Manor Place, Kingswood, KT20 — £900,000 • 4 bed • 3 bath • 2296 ft²
7 bedroom detached house for sale in Forest Drive, Kingswood, KT20 — £1,300,000 • 7 bed • 4 bath • 4200 ft²
4 bedroom semi-detached house for sale in St. Monicas Road, Kingswood,, KT20 — £850,000 • 4 bed • 3 bath • 2514 ft²
5 bedroom detached house for sale in Woodland Way, Kingswood, Surrey, KT20 — £1,695,000 • 5 bed • 3 bath • 3267 ft²
5 bedroom detached house for sale in Cedar Walk, Kingswood,, KT20 — £1,725,000 • 5 bed • 4 bath • 3773 ft²






















































































































