Modernised Victorian townhouse with flexible living, enclosed yard and two powered stores..
Victorian mid-terrace with characterful high ceilings and sash-style windows
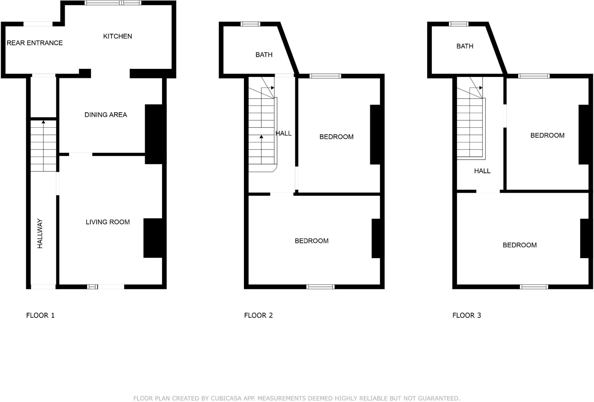
A handsome three-storey Victorian townhouse sensitively modernised to provide flexible family accommodation across three floors. Recent updates include a modern kitchen, two contemporary bathrooms and a gas central heating system installed in 2018 and serviced January 2025, so the house feels warm, bright and move-in ready.
The layout is versatile with four double bedrooms, a dining room and a kitchen with Velux and UPVC windows that flood the interior with light. Outdoors is a small, fully enclosed rear yard with two powered storage units — low-maintenance external space that works for bikes, bins or a small seating area. On-street parking to the rear and pedestrian access via a shared pathway add everyday convenience.
Location is central Bala, close to shops, services and local schools, and within Snowdonia National Park — appealing for families who want town convenience with easy access to countryside. Note the property sits on a narrow terraced plot in a mixed residential/retail street, and the surrounding area scores as very deprived, which may affect resale or rental demand in some markets.
Practical matters to bear in mind: there has been no formal building survey in the last 12 months and services/appliances have not been fully tested. Also, an Article 4 Direction applies within the National Park: changing the property to a second home or short-term holiday let will require planning permission. A viewing and a full survey are recommended to confirm condition and suitability for your needs.
2 bedroom terraced house for sale in Mount Street, Bala, LL23 — £115,000 • 2 bed • 1 bath • 700 ft²
3 bedroom terraced house for sale in Ffrydan Road, Bala, LL23 — £120,000 • 3 bed • 2 bath • 680 ft²
3 bedroom terraced house for sale in Glanffriar 75 Tegid Street, Bala, LL23 — £245,000 • 3 bed • 2 bath • 1442 ft²
8 bedroom detached house for sale in Manchester House 3 -5 High Street, Bala, LL23 — £165,000 • 8 bed • 1 bath • 2944 ft²
5 bedroom semi-detached house for sale in 17 Ffrydan Road, Bala, LL23 — £285,000 • 5 bed • 4 bath • 1658 ft²
5 bedroom terraced house for sale in 13 Arenig Street, Bala, LL23 — £275,000 • 5 bed • 1 bath • 999 ft²






























































































