Chain-free three-bed terrace requiring renovation with clear rental potential.
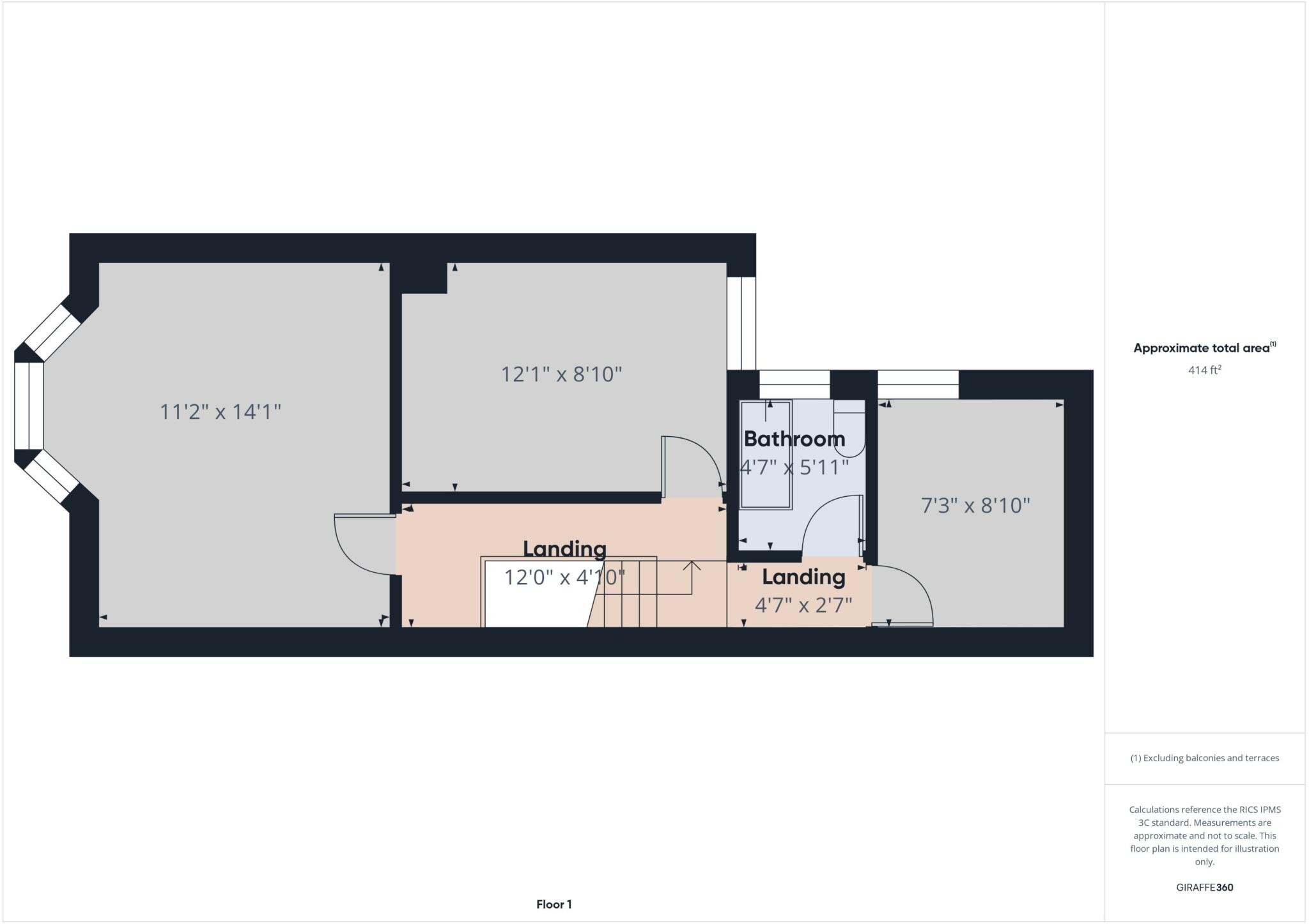
Three-bedroom mid-terrace Victorian house with through lounge and small rear yard
Chain-free freehold; sold via online auction with auction fees and deposit
Requires full renovation; visible scaffolding repair needed to bay window
Solid brick walls likely uninsulated; opportunity to improve thermal performance
Mains gas boiler and radiators present; double glazing of unknown age
EPC rating D; council tax very low — running costs potentially economical
Located in high-demand rental area with good transport and nearby schools
Crime above average and area classified as very deprived — affects marketability
A three-bedroom mid-terraced Victorian house on Gloucester Road, offered chain-free and ideal for investors or DIY buyers. The property provides a generous through lounge, compact kitchen to the rear and a small yard, with three first-floor bedrooms and a family bathroom. The layout suits rental lets or a modest family conversion.
The house requires renovation throughout: scaffolding-repair work is visible to the bay, walls are likely uninsulated (solid brick), and some modernisation of services may be needed despite a working mains-gas boiler and radiators. EPC is D; double glazing is present but install date is unknown. These factors give scope to add value but require budget and time.
Located in a well-connected part of Tuebrook with a local high street, bus links and several primary and secondary schools rated Good nearby, the property sits in a popular rental area. Crime levels are above average and the wider neighbourhood scores high on deprivation, which will influence tenant mix and resale market.
This lot will be sold via online auction under auction terms. Prospective buyers should factor in the non-refundable deposit and reservation fee structure attached to the sale, and consult the legal pack before bidding. For investors prepared to renovate, this freehold mid-terrace represents clear potential to increase rental income or resale value.
3 bedroom terraced house for sale in Cornice Road, Liverpool, L13 — £145,000 • 3 bed • 1 bath • 879 ft²
3 bedroom terraced house for sale in 31 Halsbury Road, Kensington, Liverpool, L6 — £85,000 • 3 bed • 1 bath • 883 ft²
3 bedroom terraced house for sale in Handfield Street, Liverpool, Merseyside, L5 6PE, L5 — £65,000 • 3 bed • 1 bath
2 bedroom terraced house for sale in Ronald Street, Liverpool, Merseyside, L13 — £65,000 • 2 bed • 1 bath
3 bedroom end of terrace house for sale in 100 Woodcroft Road, Liverpool L15 2HQ, L15 — £137,000 • 3 bed • 1 bath • 1012 ft²
4 bedroom terraced house for sale in Kitchener Drive, Liverpool, Merseyside, L9 — £110,000 • 4 bed • 1 bath • 1173 ft²






















































