Three-bedroom period home with hilltop views and useful outbuildings.
Grade II listed stone cottage with many original features
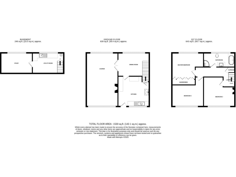
Spacious 1,530 sq ft over three floors, three double bedrooms
Farmhouse-style kitchen with gas-powered Aga
Separate lounge, dining room, study and utility room
Well-maintained garden opposite and shared outhouse/store
Off-street parking opposite the property
Listed status restricts alterations and may increase repair costs
Slow broadband despite excellent mobile signal
This Grade II listed stone cottage offers generous, character-filled accommodation across three floors, ideal for a family seeking period charm and countryside views. The house totals about 1,530 sq ft and retains exposed beams, a feature stone fireplace and a farmhouse-style kitchen with a gas Aga, creating a warm, traditional feel.
Practical spaces include a separate lounge and dining room, useful study, lower-ground utility, and off-street parking opposite the cottage. A separate, well-maintained garden and shared outhouse/store add useful outdoor and storage space while hilltop positions provide extensive rural vistas.
Buyers should note the listed status: alterations will be restricted and repairs require listed-building consent, which may add cost and delay. Broadband speeds are slow in the area despite excellent mobile signal. The plot is modest in size and the property sits in a terrace, so external space is limited compared with a detached home.
Overall, this freehold cottage suits buyers who value period character, views and a substantial internal layout rather than a large modern garden or quick DIY changes. Local primary schools are well regarded and the hamlet setting offers low crime and a peaceful rural lifestyle.
3 bedroom cottage for sale in 4, Church Street, Heptonstall, Hebden Bridge, HX7 7NS, HX7 — £285,000 • 3 bed • 1 bath • 722 ft²
3 bedroom detached house for sale in West Shaw, Oxenhope, Keighley, BD22 — £350,000 • 3 bed • 1 bath • 955 ft²
3 bedroom cottage for sale in Longley, Huddersfield, HD5 — £240,000 • 3 bed • 1 bath • 3509 ft²
3 bedroom cottage for sale in Haigh Fold, Bradford, BD2 3HR, BD2 — £225,000 • 3 bed • 1 bath • 729 ft²
4 bedroom semi-detached house for sale in Black Hill Cottages, Pecket Well, Hebden Bridge, HX7 — £525,000 • 4 bed • 2 bath • 1714 ft²
3 bedroom cottage for sale in Wellhouse Fields, Golcar, Huddersfield, HD7 — £365,000 • 3 bed • 2 bath • 1656 ft²






















































































