LA11 7DW - 5 bedroom terraced house for sale in 3 Mayfield Terrace, Gr…

View on Property Piper

5 bedroom terraced house for sale in 3 Mayfield Terrace, Grange-over-Sands, LA11

Summary - 3 MAYFIELD TERRACE GRANGE-OVER-SANDS LA11 7DW

5 bed 4 bath Terraced

**Standout Features:**
- Stunning views of Morecambe Bay
- Expertly renovated terraced stone home
- Five spacious bedrooms, three with en-suites
- Light-filled living with three reception rooms
- Contemporary kitchen and utility room
- Private parking for two vehicles
- Enclosed front and rear gardens with outdoor entertainment space
- Chain-free sale and low council tax

This beautifully modernized Victorian townhouse merges elegant traditional design with contemporary living, boasting breathtaking views across Morecambe Bay. Spanning four levels, the light-filled home features an inviting layout with five well-appointed bedrooms—three offering en-suite facilities—ideal for larger families or guests. The main living area boasts high ceilings and stunning bay windows, while the contemporary kitchen seamlessly flows into a spacious dining area and conservatory, creating an ideal setting for family gatherings and entertaining.

Nestled within a friendly community close to local amenities—including independent shops and scenic walks—the property also provides off-street parking for convenience along with charming enclosed gardens for outdoor relaxation. With excellent connectivity via nearby train services and the allure of coastal living, this chain-free home represents a unique opportunity to enjoy both style and comfort in an affable town setting. Don’t miss out on this exceptional offering!

Property Details

Brochure Descriptions

Image Descriptions

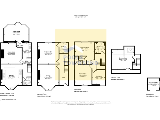
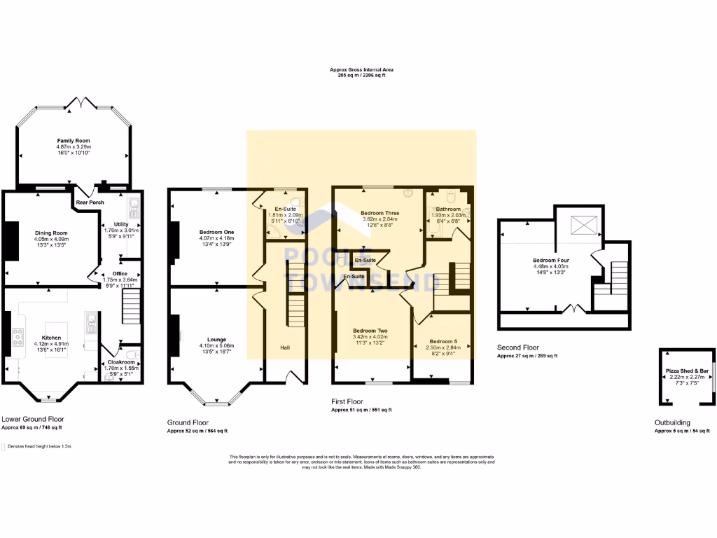
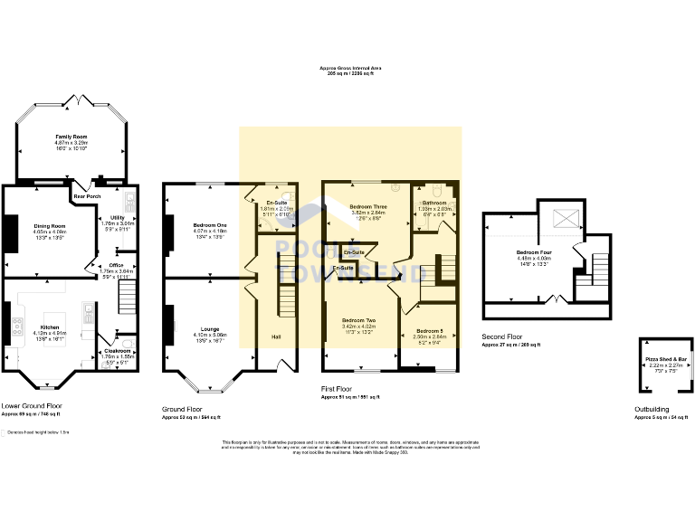
Floorplan Description

Rooms

Textual Property Features

Detected Visual Features

EPC Details

Nearby Schools

Nearest Bars And Restaurants

,,,,}

Nearest General Shops

,,}

Nearest Grocery shops

,,}

Nearest Supermarkets

,,}

Nearest Religious buildings

,,}

Nearest Medical buildings

,,,}

Nearest Leisure Facilities

,,,,}

Nearest Tourist attractions

,,}

Nearest Train stations

,,,,}

Nearest Bus stations and stops

,,,,}

Nearest Hotels

,,}

Tags

Local Market Stats

AirBnB Data

Similar Properties

Meta

High Res Images

Compatible Images

Low res Images

Thumbnails

Raw Images

High Res Floorplan Images

Compatible Floorplan Images

Low res Floorplan Images

FloorplanImages Thumbnail

Raw Floorplan Images