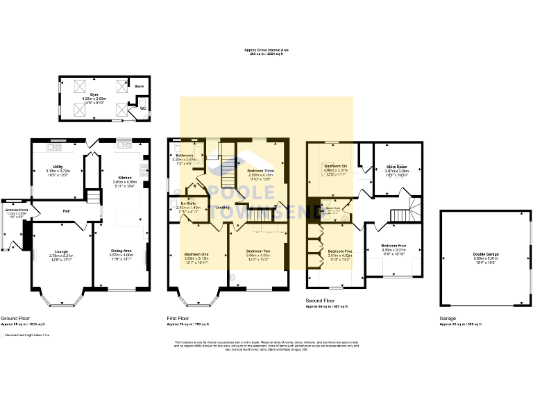
Spacious family residence with detached garage and coastal reserve access.
Panoramic Morecambe Bay views from most main rooms and gardens
Recently renovated throughout, blending period features with modern fittings
Six double bedrooms and three modern bathrooms across three storeys
Large kitchen-diner with underfloor heating and integrated appliances
Detached double garage, private drive and off-road parking for two cars
Direct garden gate to Brown Robin Nature Reserve; pleasant walks nearby
Adjoining properties have rear right of access; shared parking across road
Sandstone/limestone walls assumed uninsulated — consider energy upgrades
Set on the fringe of Grange-over-Sands, this impressive period house combines Victorian character with a full modern renovation. Most main rooms and both garden aspects enjoy panoramic views across Morecambe Bay, creating a light, uplifting living environment for family life and entertaining.
Accommodation is arranged over three storeys and includes six well-proportioned bedrooms and three bathrooms, a bay-windowed lounge with open fire, and a large kitchen-diner with underfloor heating and a wood-burning stove. High ceilings, original cornicing, sash windows and tiled flooring have been retained and sympathetically enhanced with contemporary fixtures and integrated appliances.
Outside offers practical family space: a private drive and stone-chipped parking for two, a detached double garage with remote door, a lawn and patio garden with direct gated access to Brown Robin Nature Reserve. A detached outbuilding currently fitted as a gym adds flexible space and includes a cloakroom.
Important factual notes: the property’s solid sandstone/limestone walls are assumed to have no added insulation, which may affect thermal performance and running costs. Adjoining properties have a right of access at the rear and there is a shared parcel of land across the road used for communal parking and an allotment. Flood risk is shown as none.
5 bedroom terraced house for sale in 3 Mayfield Terrace, Grange-over-Sands, LA11 — £450,000 • 5 bed • 4 bath • 2152 ft²
4 bedroom end of terrace house for sale in Berriedale Terrace, Grange-over-sands, LA11 — £415,000 • 4 bed • 1 bath • 1626 ft²
2 bedroom end of terrace house for sale in Wyncote, 61 Kentsford Road, Grange over Sands, LA11 — £350,000 • 2 bed • 2 bath • 1361 ft²
3 bedroom detached bungalow for sale in Heads Drive, Grange-over-sands, LA11 7DY, LA11 — £475,000 • 3 bed • 2 bath • 2506 ft²
3 bedroom detached bungalow for sale in Carter Road, Grange-over-Sands, LA11 — £475,000 • 3 bed • 1 bath • 1046 ft²
3 bedroom detached house for sale in Mill Croft, 18 The Old Nurseries, Grange-Over-Sands, LA11 — £650,000 • 3 bed • 2 bath • 1493 ft²






















































































































































































