E4 9JF - 3 bedroom house for sale in Larkshall Road, Chingford, E4

View on Property Piper

3 bedroom house for sale in Larkshall Road, Chingford, E4

Summary - 434 LARKSHALL ROAD LONDON E4 9JF

3 bed 1 bath House

Spacious three-bedroom 1930s terrace near Highams Park station and Epping Forest, chain free with driveway.
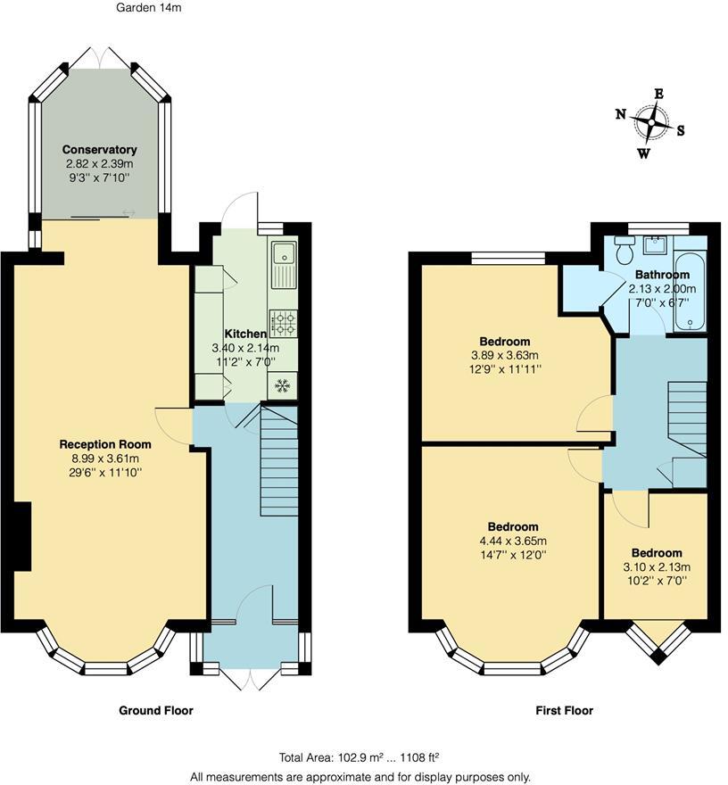
Chain free three-bedroom 1930s mid-terrace, over 1,100 sq ft
Moments from Highams Park station and short walk to Epping Forest
Private driveway for off-street parking, convenient for families
Potential to extend (STPP) and reconfigure ground floor
Single bathroom; bathroom and kitchen likely need modernisation
Solid brick construction with assumed no cavity insulation
Modest rear garden and small plot size
Area records above-average crime — consider security measures
This 1930s mid-terrace presents over 1,100 sq ft of family-friendly space just moments from Highams Park station and a short walk to Epping Forest. The house is offered chain free with a private driveway, making arrivals and initial moving straightforward. The bay-fronted main bedroom and full-length reception room retain period character and provide practical living space for a growing household.

There is clear scope to enlarge the footprint (potential to extend, subject to planning) and to reconfigure the kitchen and conservatory to create a more open-plan ground floor. The property is freehold and benefits from fast broadband and excellent mobile signal — useful for home working and family connectivity.

Buyers should note material points honestly: the home has a single bathroom, some dated fittings and areas that will benefit from updating, and the original solid-brick construction likely lacks modern cavity insulation. The rear plot is modest in size and the area records above-average crime levels, which may concern some purchasers.

Overall this is a practical, well-located period family home with short-term convenience and longer-term improvement potential. It will suit buyers wanting immediate space close to transport and green space, and those willing to invest modestly to modernise and extend.

Property Details

Brochure Descriptions

Image Descriptions

Floorplan Description

Rooms

Textual Property Features

Target Audience

AI Tags

Detected Visual Features

EPC Details

Nearby Schools

Nearest Bars And Restaurants

,,,,}

Nearest General Shops

,,}

Nearest Grocery shops

,,}

Nearest Supermarkets

,,}

Nearest Religious buildings

,,}

Nearest Medical buildings

,,,}

Nearest Airports

,}

Nearest Leisure Facilities

,,,,}

Nearest Tourist attractions

,,}

Nearest Train stations

,,,,}

Nearest Bus stations and stops

,,,,}

Nearest Hotels

,,}

Tags

Local Market Stats

AirBnB Data

Similar Properties

Meta

High Res Images

Compatible Images

Low res Images

Thumbnails

Raw Images

High Res Floorplan Images

Compatible Floorplan Images

Low res Floorplan Images

FloorplanImages Thumbnail

Raw Floorplan Images