GU34 4HD - Detached house for sale in Adj. 12 Church Lane, Holybourne,…

View on Property Piper

Detached house for sale in Adj. 12 Church Lane, Holybourne, Alton, Hampshire, GU34

Summary - 12 CHURCH LANE HOLYBOURNE ALTON GU34 4HD

1 bed 1 bath Detached

**Standout Features:**
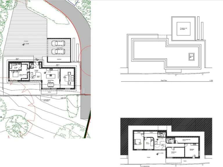
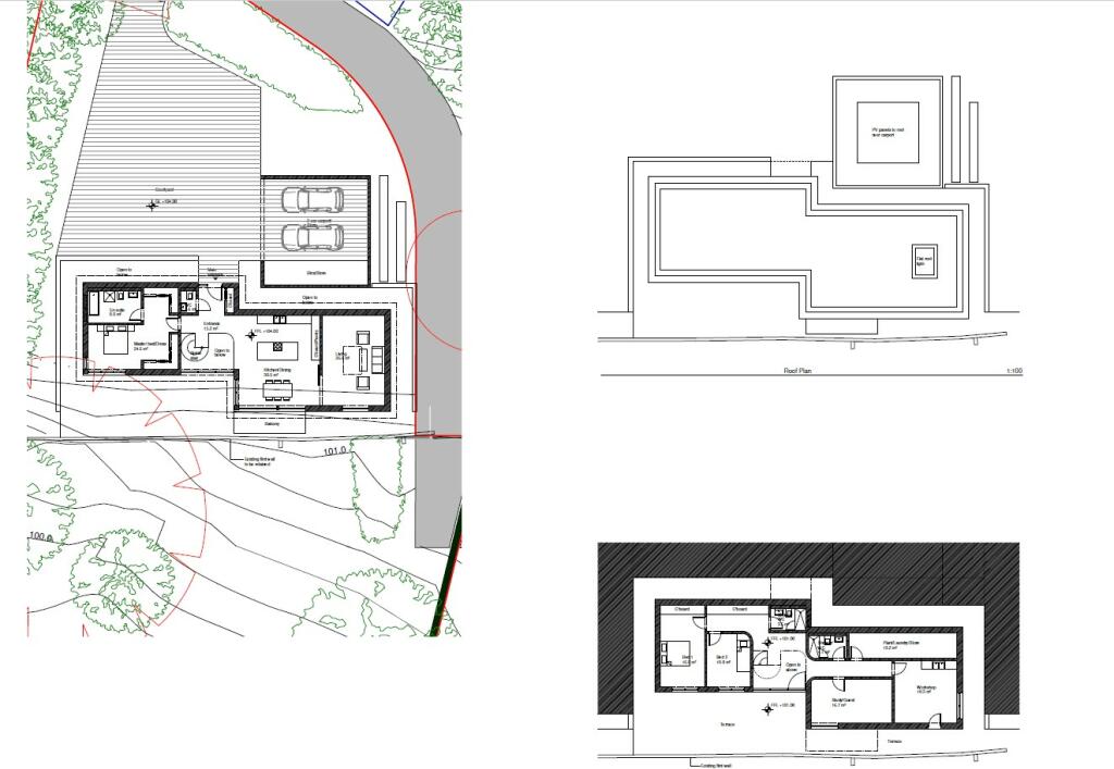
- Magnificent post-modernist style house design opportunity
- Expansive 325 sq meters (approximately 3,498 sq ft)
- Situated on a generous, sloping plot leading to the picturesque Bourne stream
- Located within a desirable conservation area of Holybourne
- Planning permission granted for the proposed house and an alternative smaller house
- Neighborhood characterized by affluence and peaceful rural surroundings

**Summary:**
Seize a remarkable opportunity to create your dream contemporary home in the prestigious Holybourne conservation area! This impressive plot, encompassing 325 sq meters, gently descends to the scenic Bourne stream, providing a tranquil setting and striking views. The property offers the potential for a post-modernist masterpiece with first-class access to landscaping, outdoor space, and privacy. Moreover, planning permission is already in place for both the ambitious original design and a smaller alternative, making it a flexible investment.

Nestled among affluently aging neighborhoods, the area boasts excellent educational options, with multiple 'Good' rated schools within reach. Enjoy the peace of mind that comes with a spacious and serene environment, perfect for families or those seeking a weekend getaway. This exceptional chance to personalize and build your ideal residence is a fleeting opportunity—act fast to secure your slice of this tranquil paradise before it’s gone!

Property Details

Brochure Descriptions

Image Descriptions

Textual Property Features

Detected Visual Features

Nearby Schools

Nearest Bars And Restaurants

,,,,}

Nearest General Shops

,,}

Nearest Grocery shops

,,}

Nearest Supermarkets

,,}

Nearest Religious buildings

,,}

Nearest Medical buildings

,,,}

Nearest Airports

}

Nearest Leisure Facilities

,,,,}

Nearest Tourist attractions

,,}

Nearest Train stations

,,,,}

Nearest Bus stations and stops

,,,,}

Nearest Hotels

,,}

Tags

Local Market Stats

Similar Properties

Meta

High Res Images

Compatible Images

Low res Images

Thumbnails

Raw Images