Bright three-bedroom home near coast and excellent grammar school.
10-year new homes warranty included
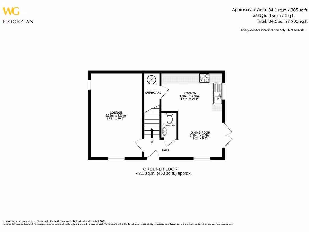
The Whitebeam is a modern-traditional three-bedroom end-of-terrace home finished to a high specification. Its open-plan kitchen-dining area with integrated appliances and bi-fold doors creates a bright, sociable hub that spills straight into the garden. A dual-aspect sitting room, cloakroom and convenient under-stairs storage add practical family living space on the ground floor.
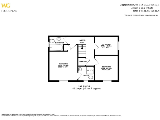
Upstairs the principal bedroom benefits from an en suite shower room, with two further bedrooms and a family bathroom completing the layout. The third bedroom works well as a nursery, study or guest room. Energy-efficient air source heating and a 10-year new homes warranty are significant running-cost and security advantages.
Set in a small exclusive development on the edge of Colyton, the location is a strong selling point. Beaches are around three miles away, countryside walks are on the doorstep and Colyton Grammar School (Outstanding) is close by. Local amenities — shops, pub, post office and community facilities — are within easy walking distance.
Practical considerations: the plot is small and the overall house size is average at about 905 sq ft, which may suit families seeking manageable accommodation rather than large gardens or extensive outside space. Broadband and mobile signal are average locally, and nearby primary schools have mixed Ofsted outcomes, so buyers with young children should check individual school catchments. Garage parking is included for convenience.
3 bedroom semi-detached house for sale in Colyton, East Devon, EX12 — £380,000 • 3 bed • 2 bath • 922 ft²
3 bedroom end of terrace house for sale in Colyton, Devon, EX24 — £385,000 • 3 bed • 2 bath • 922 ft²
2 bedroom terraced house for sale in Colyton, Devon, EX24 — £280,000 • 2 bed • 1 bath • 724 ft²
3 bedroom detached house for sale in Stafford Lane, Colyford, Colyton, EX24 — £660,000 • 3 bed • 2 bath • 1590 ft²
4 bedroom semi-detached house for sale in Colyton, East Devon, EX24 — £410,000 • 4 bed • 2 bath • 1100 ft²
4 bedroom detached house for sale in Colyton, Devon, EX24 — £485,000 • 4 bed • 2 bath • 1345 ft²














































