Energy-efficient two-bed near beaches and excellent grammar school.
High specification finish with integrated contemporary kitchen
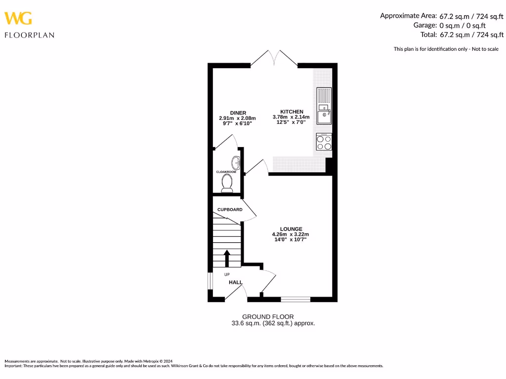
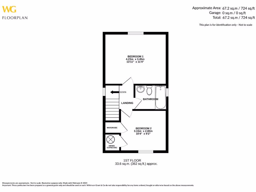
A modern two-bedroom terraced home in the heart of picturesque Colyton, finished to a high specification and offered with a 10-year new homes warranty. The open-plan living, integrated kitchen and contemporary bathroom make this an efficient, low-maintenance first home or buy-to-let. Energy-efficient features include an air source heat pump and a dedicated EV charging point, reducing running costs and future-proofing everyday living.
The property sits within an exclusive small development just three miles from award-winning beaches and within easy walking distance of local shops, pub, post office and riverside walks. Allocated off-street parking and a small, low-maintenance garden add practical outdoor space. Colyton Grammar School (outstanding) and other local schools are nearby, though primary school ratings in the area are mixed.
At 724 sq ft the rooms are compact but well planned, with built-in storage and a fitted wardrobe in the principal bedroom. This home is especially suited to first-time buyers, young professionals or investors seeking a modern, energy-efficient property in an affluent, low-crime town fringe location. Note the small plot size and relatively modest room dimensions when considering furniture and extension potential.
3 bedroom semi-detached house for sale in Colyton, East Devon, EX12 — £380,000 • 3 bed • 2 bath • 922 ft²
3 bedroom end of terrace house for sale in Colyton, Devon, EX24 — £385,000 • 3 bed • 2 bath • 922 ft²
4 bedroom semi-detached house for sale in Colyton, Devon, EX24 — £410,000 • 4 bed • 2 bath • 1100 ft²
3 bedroom terraced house for sale in Coly Road, Colyton, Devon, EX24 — £320,000 • 3 bed • 2 bath • 1064 ft²
3 bedroom end of terrace house for sale in Colyton, East Devon, EX24 — £385,000 • 3 bed • 2 bath • 905 ft²
4 bedroom detached house for sale in Colyton, Devon, EX24 — £485,000 • 4 bed • 2 bath • 1345 ft²






































