Quiet countryside home with outbuildings and generous parking for families.
Detached four-bedroom period house with character features
Approximately 0.375 acre plot with separate additional plot and greenhouse
Large outbuildings offering garage, workshop or storage potential
Ample off-street parking on block-paved driveway
Juliette balcony and countryside views to rear
Oil-fired boiler heating; EPC rating E
Walls likely uninsulated; property dates pre-1900 (may need upgrades)
No mobile signal and very slow broadband speeds
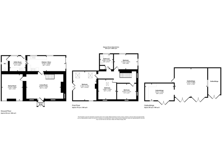
Set in a quiet rural hamlet about eight miles from Carmarthen, this detached four‑bedroom house sits on approximately 0.375 acres and offers substantial parking and large outbuildings. The cottage retains period character — exposed oak beams, oak doors and an inglenook fireplace — paired with double glazing and oil‑fired central heating. A Juliette balcony from the principal bedroom looks over sloping fields, and the garden and separate plot beyond provide open countryside views and private outdoor space.
The layout includes two reception rooms, a kitchen/dining area with patio doors, utility and cloakroom on the ground floor, with four double bedrooms and a family bathroom upstairs. Outbuildings and a block‑paved parking area give strong potential for garage, workshop or storage use; the separate plot and greenhouse offer extra scope for garden projects or hobby use.
Important practical points are clear: the house is of traditional stone construction (pre‑1900) and walls are assumed uninsulated, the heating runs on oil with a boiler and radiators, and the Energy Performance Certificate is band E. Mobile signal is absent and broadband speeds are very slow here — factors to consider if you need reliable connectivity. Council tax is above average. The property is offered freehold and chain free.
This home will suit buyers seeking rural character, space and outbuilding flexibility — families or countryside buyers who value views and privacy. It will also appeal to purchasers prepared to carry out sympathetic improvements (insulation, potential heating upgrades or general modernisation) to enhance comfort and running costs.
3 bedroom detached house for sale in Crwbin, Kidwelly, Carmarthenshire, SA17 — £370,000 • 3 bed • 1 bath • 1366 ft²
4 bedroom detached house for sale in Blaenycoed, Carmarthen, Carmarthenshire., SA33 — £349,000 • 4 bed • 2 bath • 1226 ft²
4 bedroom detached house for sale in Bancyfelin, Carmarthenshire, SA33 — £485,000 • 4 bed • 2 bath • 2296 ft²
2 bedroom detached house for sale in Llanfynydd, Carmarthenshire, SA32 — £575,000 • 2 bed • 2 bath • 1366 ft²
4 bedroom detached house for sale in Llanfynydd, Carmarthen, Carmarthenshire., SA32 — £425,000 • 4 bed • 2 bath • 1637 ft²
4 bedroom cottage for sale in Pentre-Cwrt, Llandysul, SA44 — £375,000 • 4 bed • 1 bath • 979 ft²






























































































