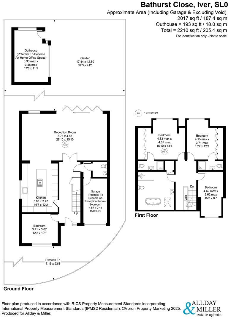
**Standout Features:**
- Four spacious bedrooms and three elegant bathrooms (two Roca ensuites)
- Beautifully maintained contemporary kitchen with integrated Neff appliances
- Private cul-de-sac location, moments from Iver Station (Crossrail)
- Stunning rear garden with porcelain patio and versatile electric outhouse
- Large driveway offering off-street parking for up to four cars
- Potential to convert garage into additional living space (Subject to Planning)
- Total area of 2,210 sq ft (2017 sq m)
Discover your dream family home at Bathurst Close, Iver, a stunning four-bedroom detached residence combining luxury and practicality in a serene setting. This meticulously maintained property spans over 2,210 square feet and is adorned with elegant finishes, including a stylish kitchen featuring high-end Neff appliances and a spacious dining area perfect for gatherings. The bifold doors lead to a beautifully landscaped garden, ideal for outdoor entertaining and relaxation.
Upstairs, you'll find generously-sized bedrooms bathed in natural light, with two offering modern Roca ensuite bathrooms for maximum comfort. The potential to convert the garage opens up exciting opportunities for future expansion, ensuring this home can evolve with your family's needs. Conveniently located near Iver Station allows for effortless commuting, while nearby amenities offer shopping and leisure options, making this property perfect for families seeking comfort and quality living. Don't miss your chance to explore the endless possibilities this exceptional home has to offer!
4 bedroom detached house for sale in High Street, Iver, SL0 — £650,000 • 4 bed • 2 bath • 1535 ft²
5 bedroom detached house for sale in Old Slade Lane, Richings Park, SL0 — £1,880,000 • 5 bed • 4 bath • 3621 ft²
4 bedroom detached house for sale in Copse Wood, Iver Heath, SL0 — £1,195,000 • 4 bed • 3 bath • 3126 ft²
4 bedroom semi-detached house for sale in Richings Park, Buckinghamshire, SL0 — £850,000 • 4 bed • 3 bath • 1890 ft²
4 bedroom detached house for sale in Wood Lane Close, Iver, SL0 — £1,300,000 • 4 bed • 3 bath • 2189 ft²
4 bedroom detached house for sale in The Close, Iver, SL0 — £900,000 • 4 bed • 3 bath • 2194 ft²


























































































































