Ready-to-build 0.7 acre site with stunning rural outlooks and generous gardens.
Full planning permission for two contemporary 250 m² detached houses
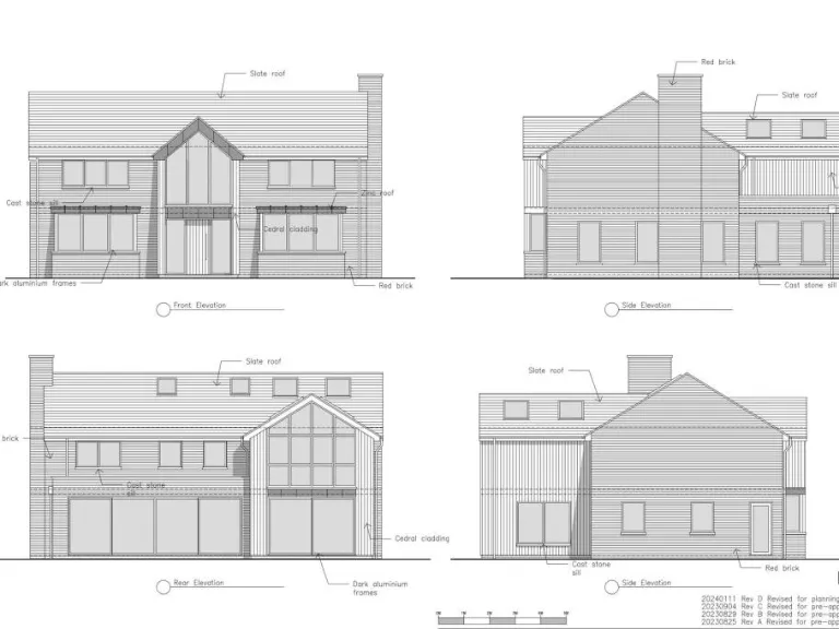
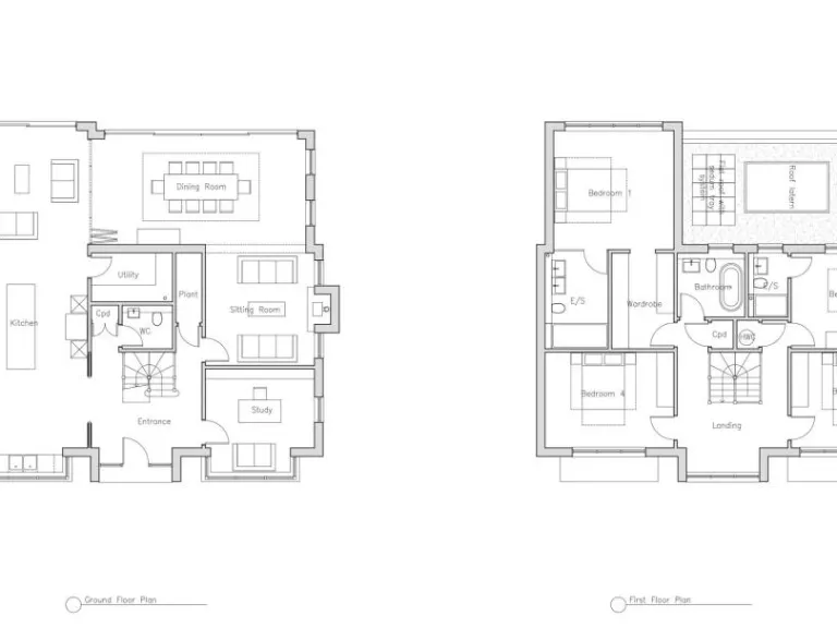
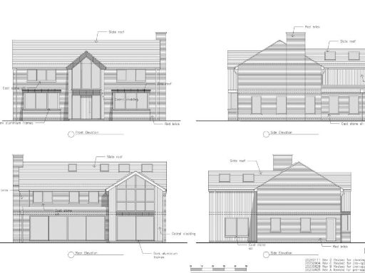
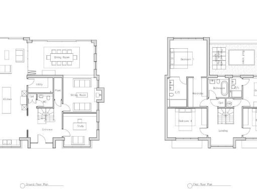
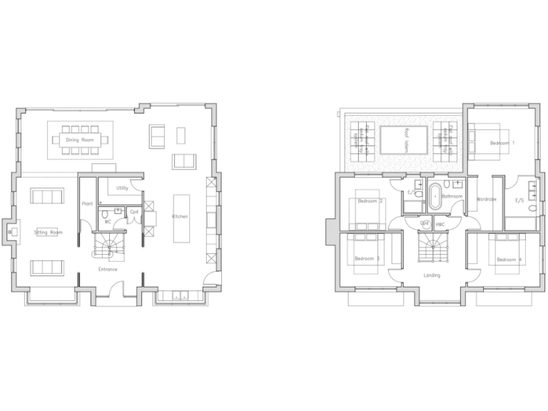
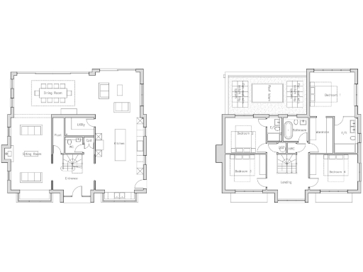
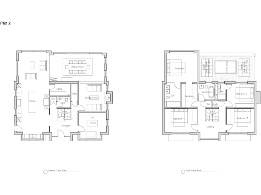
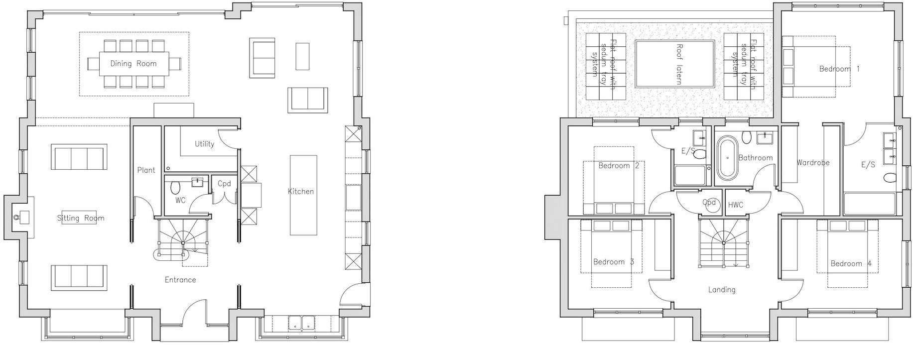
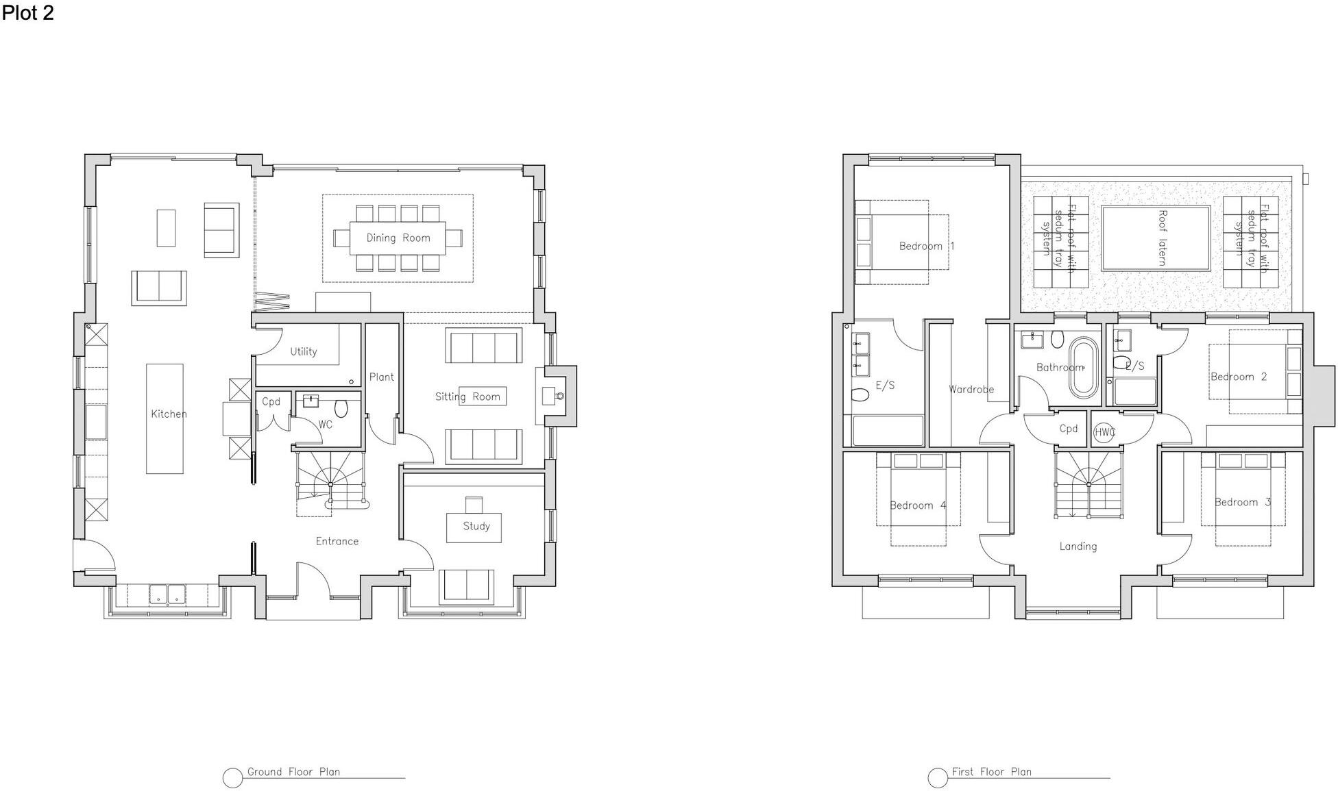
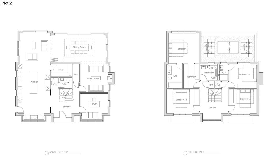
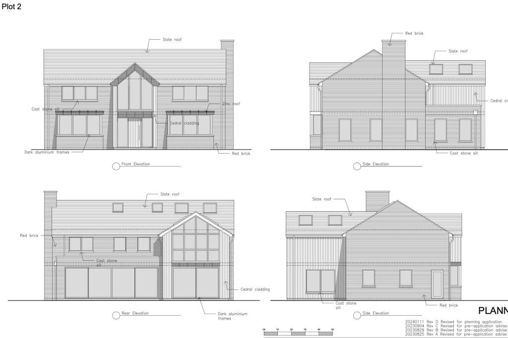
A rare, consented development plot of about 0.7 acres tucked behind Highfield House, with full planning permission (UTT/24/0356/FUL) for two contemporary detached family homes of c.250 m² each. The designs maximise countryside views and internal volume, with double carports to each plot and a flexible first-floor office above Plot 1’s garage — ideal for a home-worker or guest suite.
Plot 1 provides a substantial rear garden of c.940 m²; Plot 2 offers c.570 m², both private and suitable for play, entertaining or kitchen gardens. Vehicular access is taken from the existing southern entrance off London Road, with a new driveway along the southern boundary. The scheme requires part-demolition of the current Highfield House garage to integrate the new access.
Practical considerations are clear: mains water and electricity connections still need to be established, private drainage is proposed, and an air-source heat pump is specified. Council tax is expected to be relatively high and mobile signal is average; these are balanced by fast ultrafast broadband, strong local schools and excellent rail links into Cambridge and London.
This opportunity will suit a private developer or purchaser wanting a ready-to-deliver project in a prosperous rural village setting. The site’s freehold tenure, planning in place and generous plots make for a straightforward build route, but buyers should budget for utility connections, drainage works and the agreed garage works on site.
Land for sale in Hawkspur Green, Little Bardfield, Braintree, CM7 — £450,000 • 6 bed • 4 bath • 3725 ft²
Plot for sale in Langley Upper Green, Saffron Walden, Essex, CB11 — £600,000 • 4 bed • 5 bath • 3500 ft²
Plot for sale in Langley Upper Green, Saffron Walden, Essex, CB11 — £1,000,000 • 4 bed • 5 bath • 3500 ft²
Plot for sale in Great Hallingbury, Bishop's Stortford, CM22 — £875,000 • 1 bed • 1 bath • 1800 ft²
Plot for sale in Langley Upper Green, Saffron Walden, Essex, CB11 — £600,000 • 4 bed • 5 bath • 3500 ft²
Land for sale in Moor End, Great Sampford, Saffron Walden, Essex, CB10 — £250,000 • 1 bed • 1 bath • 1938 ft²






















































































































