Move-in ready low-maintenance home ideal for young families and first-time buyers.
- Compact new-build footprint: about 656 sq ft
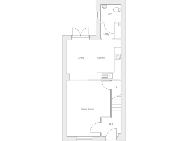
- Open-plan kitchen/diner with French doors to garden
- Master bedroom with en-suite; one family bathroom upstairs
- Utility room and downstairs WC for everyday convenience
- Off-street parking / driveway included
- Energy-efficient features and solar panels reduce running costs
- Annual service charge from £132.20; reservation fee £500
- Local area: average crime, mixed socio-economic indicators
A bright, new-build three-bedroom semi offers efficient, modern living across a compact 656 sq ft layout. The ground floor features a living room leading to a dining area and an open-plan kitchen with French doors onto a decent rear garden — ideal for weekend family time and easy indoor-outdoor flow. Practical touches include a utility area, downstairs WC and off-street parking.
Upstairs hosts a generous master bedroom with en-suite plus two further bedrooms served by a fully fitted family bathroom. The home is energy-conscious with low-maintenance finishes and solar panels, helping keep running costs down; council tax sits at a lower Band B.
This property suits a young family or first-time buyer seeking a low-upkeep, move-in ready home in Consett with good broadband and mobile coverage. Note the compact overall footprint and only one main family bathroom; internal space is efficient rather than expansive. The local area is classified as industrious with average crime and mixed socio-economic indicators, which may influence long-term resale or rental demand.
Practical points to check at viewing: confirm the specific plot details and any optional extras, service charge (shown from £132.20 yearly), and exact tenure paperwork. Overall this is a contemporary, well-specified starter family home with sensible running costs and easy access to local schools and amenities.
3 bedroom bungalow for sale in Delves Lane,
Consett,
DH8 7DD, DH8 — £176,250 • 3 bed • 1 bath • 784 ft²
4 bedroom detached house for sale in Delves Lane,
Consett,
DH8 7DD, DH8 — £328,000 • 4 bed • 1 bath • 895 ft²
4 bedroom detached house for sale in Delves Lane,
Consett,
DH8 7DD, DH8 — £315,000 • 4 bed • 1 bath • 895 ft²
4 bedroom detached house for sale in Delves Lane,
Consett,
DH8 7DD, DH8 — £293,000 • 4 bed • 1 bath • 807 ft²
5 bedroom detached house for sale in Delves Lane,
Consett,
DH8 7DD, DH8 — £403,000 • 5 bed • 1 bath • 1048 ft²
4 bedroom detached house for sale in Delves Lane,
Consett,
DH8 7DD, DH8 — £352,000 • 4 bed • 1 bath • 982 ft²


























