**Standout Features:**
- Extended 3-bedroom semi-detached home from the 1930s
- Spacious 85ft south-facing garden, perfect for outdoor activities
- Newly modernized throughout with a stylish interior
- Fabulous resin driveway accommodating up to three vehicles
- Planning permission granted for a double-storey rear extension
- Insulated garden room with storage — ideal for office or gym
- Highly sought-after location in Bearsted, near top-rated schools
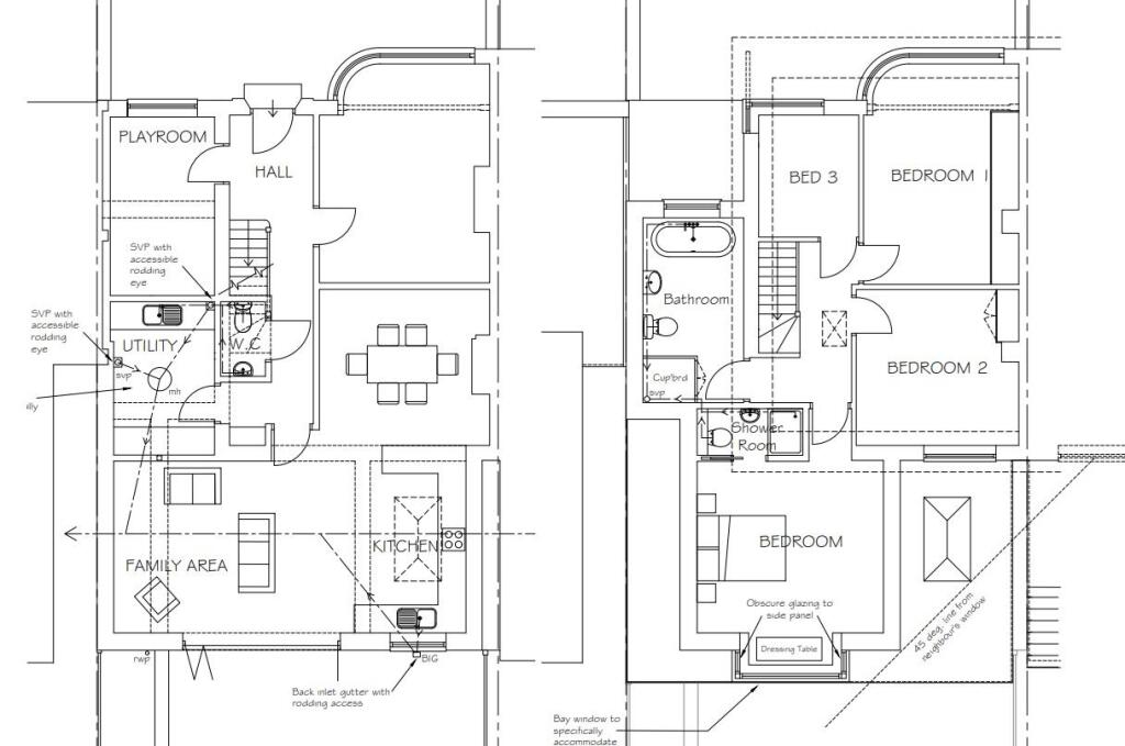
Discover an exquisite 1930s Art Deco semi-detached residence situated in the coveted Bearsted area. This stylishly modernized home boasts over 1,600 square feet of living space, offering an inviting open-plan layout ideal for family gatherings. The heart of the home features a bright and airy sitting room enhanced by a charming log burner, seamlessly flowing into a family room and contemporary kitchen with French doors that open to the expansive south-facing garden.
Step outside to enjoy the lush greens and a spacious composite deck seating area, perfect for outdoor entertaining. The insulated garden room offers versatility for home office use or a relaxing retreat, adding additional value. Upstairs, you’ll find two generous bedrooms and a cozy single, with the principal suite showcasing a spacious bay window and built-in wardrobe.
Perfect for families, this property is ideally positioned near excellent schools and local amenities, plus quick access to transport links. Don’t miss the opportunity to make this beautiful home yours — with planning permission already in place for further expansion, its future potential is limitless! Viewing is highly recommended, so act fast to secure this gem in a distinguished neighborhood.
4 bedroom semi-detached house for sale in Ashford Road, Bearsted, Maidstone, ME14 — £700,000 • 4 bed • 2 bath • 1940 ft²
3 bedroom end of terrace house for sale in Ryan Drive, Bearsted, Maidstone, ME15 — £400,000 • 3 bed • 1 bath • 951 ft²
3 bedroom semi-detached house for sale in Ragstone Road, Bearsted, Maidstone, ME15 — £375,000 • 3 bed • 1 bath • 982 ft²
5 bedroom semi-detached house for sale in Hampson Way, Maidstone, ME14 — £625,000 • 5 bed • 2 bath • 1820 ft²
3 bedroom semi-detached house for sale in The Landway, Bearsted, Maidstone, ME14 — £475,000 • 3 bed • 2 bath • 1231 ft²
3 bedroom semi-detached house for sale in Aviemore Gardens, Bearsted, Maidstone, ME14 — £400,000 • 3 bed • 1 bath • 933 ft²














































































































































