E7 8BU - 5 bedroom terraced house for sale in Westbury Road, London,…

View on Property Piper

5 bedroom terraced house for sale in Westbury Road, London, E7

Summary - 4, Westbury Road, LONDON E7 8BU

5 bed 3 bath Terraced

**Standout Features:**
- Spacious 5-bedroom, 3-bathroom Victorian terraced house.
- Conveniently located near Forest Gate Station for easy commuting.
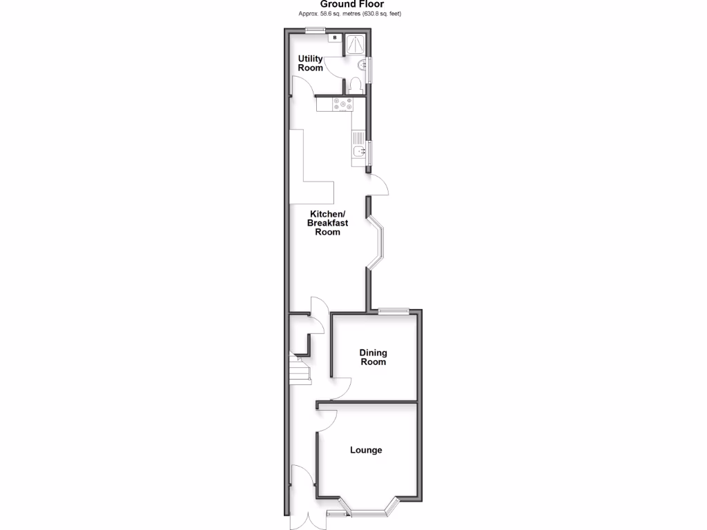
- Large Kitchen/Breakfast room with modern amenities.
- Low-maintenance rear garden perfect for relaxation.
- Family-friendly layout spread over three floors.
- Freehold tenure providing permanent ownership.
- Close proximity to shops, places of worship, and schools.

**Concise Summary:**
Discover an inviting and spacious 5-bedroom Victorian terraced house perfect for families or investors, located a stone's throw from Forest Gate Station. This charming home offers over 1,000 square feet of living space across three levels, featuring a contemporary Kitchen/Breakfast room and a handy Utility Room, alongside a low-maintenance rear garden ideal for outdoor enjoyment.

With three bathrooms, including two shower rooms, morning routines will be a breeze. The neighborhood is lively, with ample access to shopping and local amenities, including various schools rated Outstanding. Although the house has solid brick walls and no insulation, it presents an excellent opportunity for those wanting to add their personal touch through renovations.

Don't miss out on this rare opportunity to own a home in a bustling community with great transport links to Central London—this property won't last long in today's fast-paced market!

Property Details

Image Descriptions

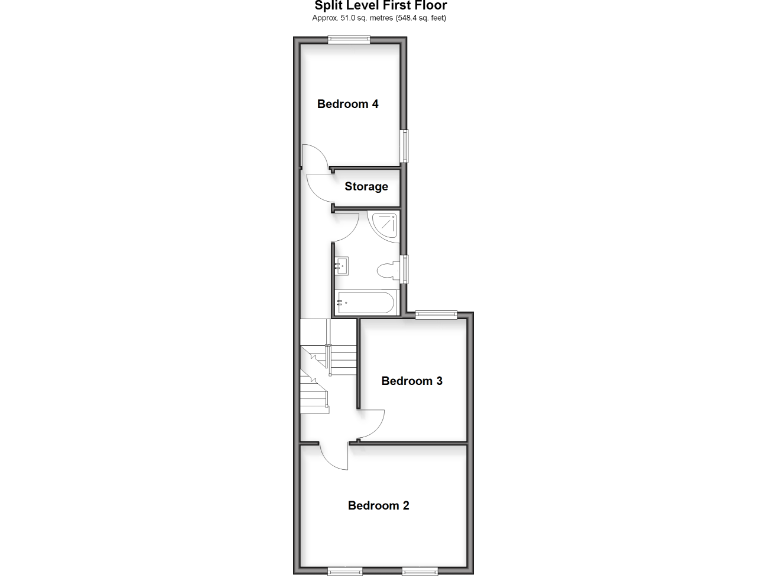
Floorplan Description

Rooms

Textual Property Features

Detected Visual Features

EPC Details

Nearby Schools

Nearest Bars And Restaurants

,,,,}

Nearest General Shops

,,}

Nearest Grocery shops

,,}

Nearest Supermarkets

,,}

Nearest Religious buildings

,,}

Nearest Medical buildings

,,,}

Nearest Airports

,}

Nearest Leisure Facilities

,,,,}

Nearest Tourist attractions

,,}

Nearest Train stations

,,,,}

Nearest Bus stations and stops

,,,,}

Nearest Hotels

,,}

Tags

Local Market Stats

AirBnB Data

Similar Properties

Meta

High Res Images

Compatible Images

Low res Images

Thumbnails

Raw Images

High Res Floorplan Images

Compatible Floorplan Images

Low res Floorplan Images

FloorplanImages Thumbnail

Raw Floorplan Images