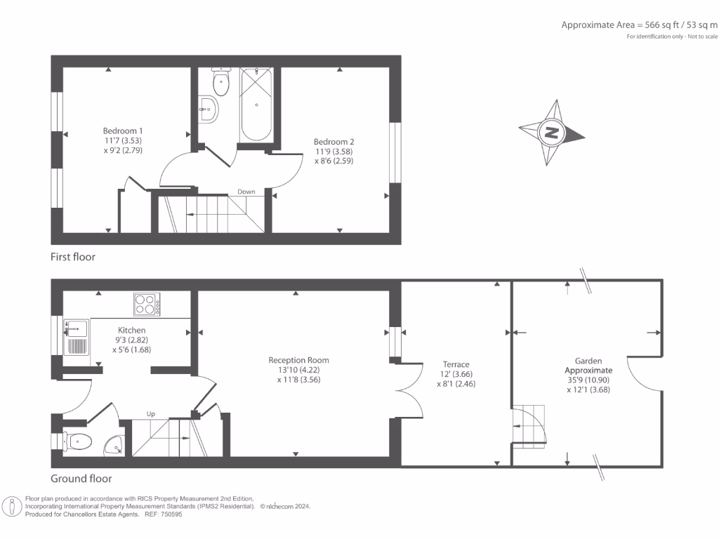
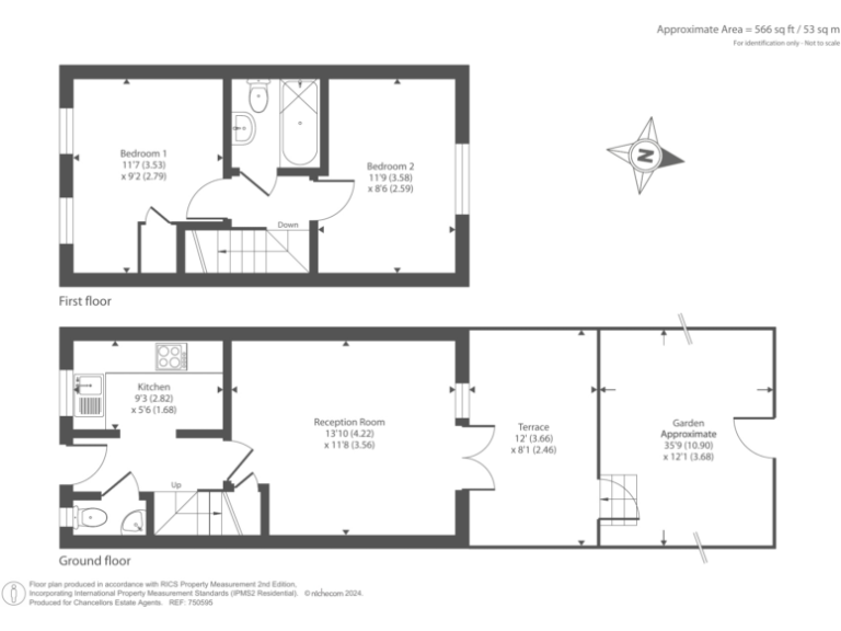
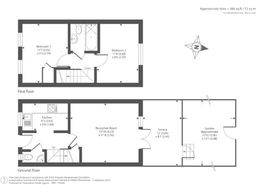
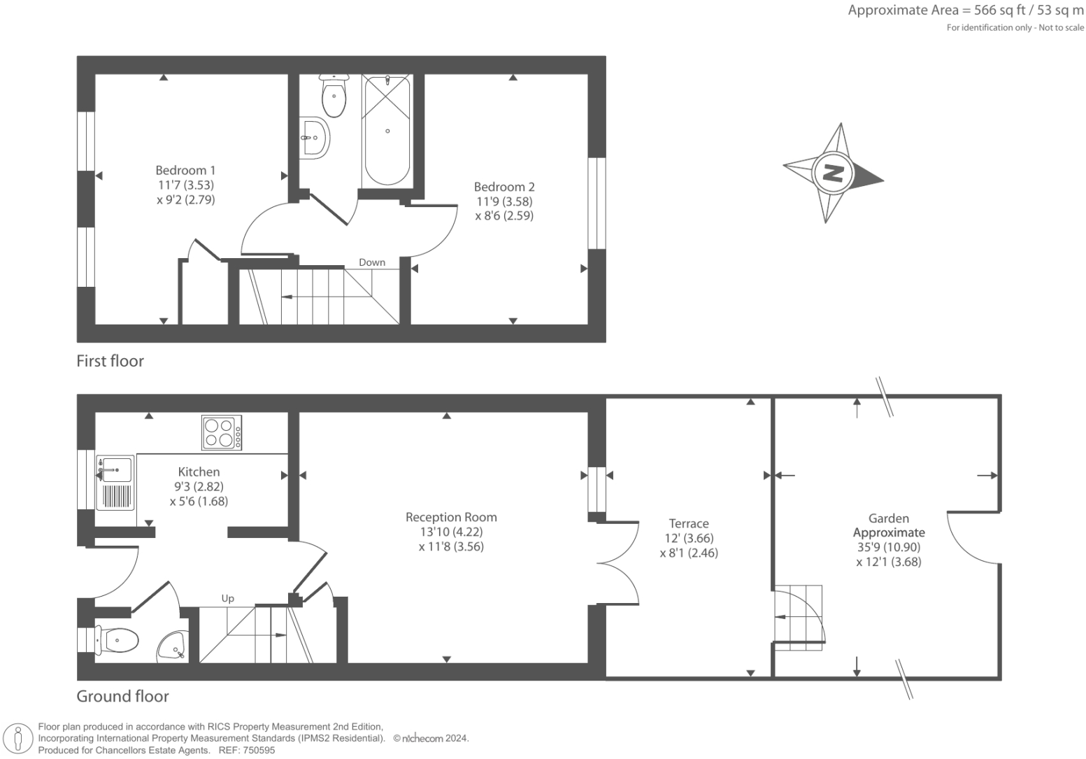
**Standout Features:**
- Newly refurbished two-bedroom mid-terrace house
- Located in a quiet cul-de-sac, just 0.4 miles from the Chipping Norton town center
- Generous rear garden with room for outdoor activities
- Two allocated off-street parking spaces
- Spacious 13'10 principal reception room with natural light
- Modern kitchen with integrated appliances and wood countertops
**Notable Concerns:**
- Small overall size of 566 sq. ft. may be limiting for larger families
- Above average crime rate in the local area
Nestled in a desirable cul-de-sac, this newly renovated two-bedroom mid-terrace home in Chipping Norton offers the perfect blend of modern comfort and convenient living. With a layout that features two double bedrooms, a generous principal reception room bathed in natural light, and a fully fitted kitchen, this property is ideal for first-time buyers or small families seeking a cozy retreat. The generous rear garden offers a tranquil space for relaxation or entertaining.
The home boasts two allocated parking spaces, providing easy access to the bustling amenities of Chipping Norton, all within a short 0.4-mile walk. While the property is well-maintained and move-in ready, potential buyers should be aware of the above-average crime rate in the area. With strong local schools and a friendly community, this charming home is an exciting opportunity that invites you to imagine your future within its walls—don't miss out!
2 bedroom terraced house for sale in Cotshill Gardens, Chipping Norton, Oxfordshire, OX7 — £285,000 • 2 bed • 1 bath • 594 ft²
2 bedroom cottage for sale in Chipping Norton, Oxfordshire, OX7 — £270,000 • 2 bed • 1 bath • 521 ft²
2 bedroom semi-detached house for sale in Rock Hill, Chipping Norton, OX7 — £325,000 • 2 bed • 2 bath • 675 ft²
2 bedroom end of terrace house for sale in Rowell Way, Chipping Norton, OX7 — £325,000 • 2 bed • 1 bath • 793 ft²
2 bedroom end of terrace house for sale in Stanley Close, Chipping Norton, OX7 — £325,000 • 2 bed • 1 bath • 736 ft²
4 bedroom detached house for sale in Chipping Norton, Oxfordshire, OX7 — £600,000 • 4 bed • 2 bath • 1550 ft²


















































































