Fully let HMO with strong income and commuter links near major employers.
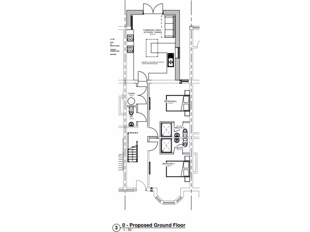
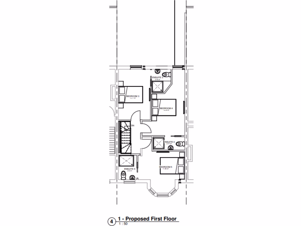
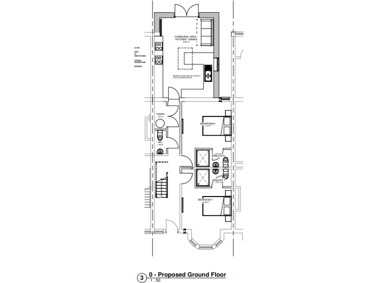
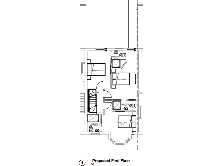
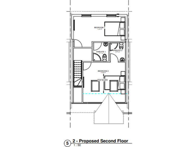
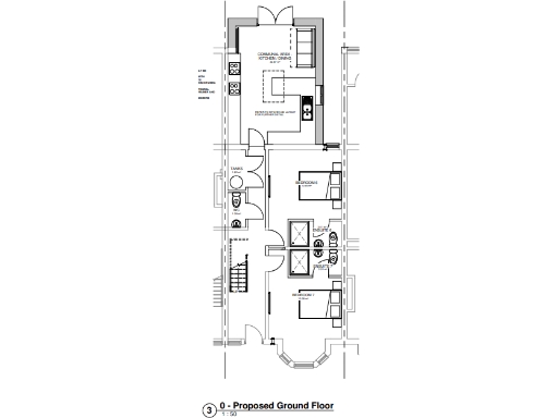
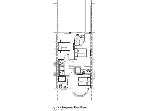
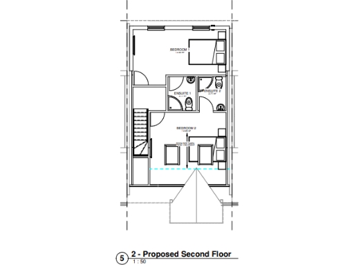
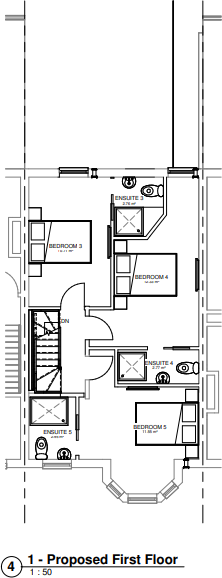
- Seven ensuite bedrooms, fully tenanted by working professionals
- Gross annual income £63,900; 10.14% gross yield
- Shared kitchen, living area, separate WC and small garden
- Compact overall size (approx. 1,185 sq ft) and small plot
- Mains gas boiler and radiators; double glazing (install date unknown)
- Area classed as deprived; average local crime levels
- Buyer onboarding fee £250 + VAT payable on offer acceptance
- Check HMO licence, fire, gas and electrical compliance pre-purchase
This fully let, seven-bedroom all-ensuite HMO on Chichester Road delivers immediate rental income: gross annual receipts of £63,900 equating to a 10.14% gross yield. The property is tenanted by working professionals, providing stable occupancy and predictable cashflow for an investor seeking buy-and-hold returns in Portsmouth.
Internally the house offers ensuite bedrooms, a communal kitchen, living area, separate WC and a small rear garden. The layout is compact (approximately 1,185 sq ft) and designed for high-yield HMO use; many rooms are medium-sized with modern finishes and good natural light. Heating is mains gas with radiator distribution and glazing is double glazed (install date unknown).
Location supports ongoing rental demand: proximity to the university, naval base, shops, major employers and strong rail and road links enhance letting prospects. Larger regeneration projects in the city centre, waterfront and Tipner West support potential long-term capital growth in the area.
Notable considerations: the property sits in a relatively deprived area with average crime levels, a small plot and limited overall floor area, which constrains alternative residential uses. There is a purchaser onboarding fee of £250 + VAT payable on offer acceptance. Buyers should verify compliance documentation for HMO licensing, gas safety, electrics and fire-safety measures before completion.
5 bedroom terraced house for sale in Chichester Road, Portsmouth, Hampshire, PO2 — £340,000 • 5 bed • 5 bath • 1318 ft²
6 bedroom house of multiple occupation for sale in Walberton Avenue, Portsmouth, Hampshire, PO6 — £440,000 • 6 bed • 5 bath • 1415 ft²
15 bedroom terraced house for sale in Festing Grove, Southsea, Hampshire, PO4 — £1,150,000 • 15 bed • 14 bath • 3384 ft²
3 bedroom terraced house for sale in Stubbington Avenue, Portsmouth, Hampshire, PO2 — £280,000 • 3 bed • 3 bath • 733 ft²
5 bedroom house of multiple occupation for sale in Fratton Road, Portsmouth, Hampshire, PO1 — £380,000 • 5 bed • 4 bath • 1259 ft²
4 bedroom terraced house for sale in Stubbington Avenue, Portsmouth, PO2 — £280,000 • 4 bed • 2 bath • 732 ft²














































































































































































