Ready-made multi-let with garden and refurbishment upside in PO2.
- Fully licensed HMO with three shower rooms and multi-let layout
- Good-size bedrooms and open-plan communal living area
- Large rear garden providing tenant amenity and outside storage
- Kitchen neglected with leaking ceiling; requires repair or replacement
- Modest overall size (approx 733 sq ft) and small plot
- Victorian build (c.1900–1929), period features, high ceilings
- Assumed cavity walls with no insulation; consider improvement costs
- Freehold tenure; located close to amenities and transport links
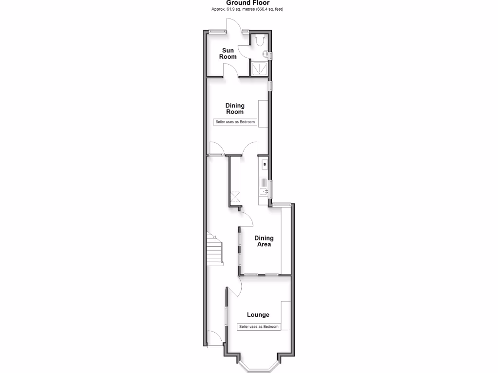
This fully licensed three-bedroom terraced house in PO2 is offered as a ready-made HMO investment. Bedrooms are described as good-sized and the property includes three shower rooms and an open-plan communal living area, supporting straightforward multi-let occupation. A large rear garden adds rental appeal and external amenity.
The building is a circa 1900–1929 Victorian terrace with period bay windows and high ceilings that can attract tenants and support modest uplift through sympathetic cosmetic improvements. The property is freehold, positioned close to daily amenities, schools and good transport links, which helps rental demand in this part of Portsmouth.
Buyers should note the kitchen is neglected with a leaking ceiling and will need repair or replacement before long-term occupation. The house sits on a small plot and overall living space is modest (approximately 733 sq ft), so layout limitations and maintenance of older construction (assumed cavity walls with no insulation) are factors for budgeting. Despite these points, the property is HMO-compliant and presents clear scope for increased income after targeted investment.
Ideal for investors seeking an income-producing asset with room to improve rental values. Verify all tenancy, compliance and refurbishment costs, and confirm measurements and services before purchase.
4 bedroom terraced house for sale in Stubbington Avenue, Portsmouth, PO2 — £300,000 • 4 bed • 2 bath • 732 ft²
3 bedroom terraced house for sale in Pretoria Road, Southsea, Hampshire, PO4 — £325,000 • 3 bed • 1 bath • 851 ft²
4 bedroom house for sale in Eton Road, Southsea, PO5 — £250,000 • 4 bed • 1 bath • 712 ft²
5 bedroom terraced house for sale in Empshott Road, Southsea, PO4 — £300,000 • 5 bed • 1 bath • 991 ft²
4 bedroom terraced house for sale in Boulton Road, Southsea, Hampshire, PO5 — £220,000 • 4 bed • 2 bath • 830 ft²
6 bedroom terraced house for sale in Cleveland Road, Gosport, PO12 — £340,000 • 6 bed • 3 bath • 1066 ft²






































