Brand-new, low-maintenance 2-bed retirement bungalow with parking and active park community..
- Brand new 2024, modern fitted kitchen with integrated appliances
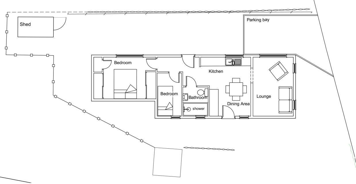
- Detached, single-storey low-maintenance bungalow, 630 sq ft
- Designed for over-50s community with active resident-run social space
- Allocated parking, small garden and garden shed included
- Site fee £224 per month; ground rent £2,688 per year (high)
- Virtual freehold park home; may be non-mortgageable — seek advice
- Part‑exchange available for a hassle-reduced move
- Council tax band A; living costs (gas/electric/water) charged separately
A bright, brand-new 2-bedroom park bungalow designed for easy, low-maintenance retirement living. The 45'x14' Manor Lancaster offers a modern fitted kitchen with integrated appliances, a comfortable living area, two bedrooms and a single bathroom across an efficient 630 sq ft layout. Built in 2024, the home feels fresh and turnkey with a small garden, shed and an allocated parking space.
Set within an established over-50s residential park, the community offers regular social activities and convenient access to local amenities, frequent buses to Bristol and nearby Cribbs Causeway shopping and entertainment. The position gives easy motorway links (M4/M5) while still feeling secure and neighbourly.
Important practical points: this is sold as a virtual freehold park home sited on leased land, with a site fee of £224 pcm and an annual ground rent of £2,688—relatively high ongoing costs. These homes are typically not mortgageable; prospective buyers should seek legal and financial advice and check park rules and the Mobile Homes Act 2013 before committing.
Overall, the property will suit buyers aged 50+ seeking a modern, low‑upkeep bungalow in a sociable park setting. It offers immediate move-in condition and part-exchange is available, but budget for ongoing site fees and ground rent when calculating affordability.
2 bedroom park home for sale in Portbury, Bristol, BS20 — £175,000 • 2 bed • 2 bath • 771 ft²
2 bedroom park home for sale in Woodlands Park, Almondsbury, BS32 — £189,995 • 2 bed • 1 bath
2 bedroom mobile home for sale in Ram Hill, Coalpit Heath, Bristol, BS36 — £180,000 • 2 bed • 2 bath • 703 ft²
2 bedroom park home for sale in Avonsmere Residential Park, Stoke Gifford, Bristol, BS34 — £172,000 • 2 bed • 1 bath • 810 ft²
1 bedroom park home for sale in Woodlands Park, Almondsbury, Bristol, BS32 — £117,000 • 1 bed • 1 bath
2 bedroom park home for sale in Woodlands Park, Almondsbury, Bristol, BS32 — £189,950 • 2 bed • 1 bath • 669 ft²


































