Ready-to-move two-bedroom residence on a peaceful over-55s site, chain-free.
Two bedrooms, including ensuite to principal bedroom
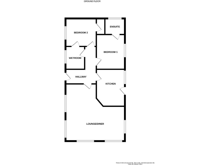
Set on a popular over-55s site in Ram Hill, this refurbished two-bedroom mobile home offers straightforward, single-storey living with immediate move-in potential. The large lounge/diner is the heart of the property and creates flexible space for relaxing or entertaining, while the kitchen includes integrated appliances and a Worcester Bosch boiler. Both double glazing and gas central heating help keep running costs modest.
Bedroom one benefits from an ensuite and bedroom two has a generous walk-in closet; a separate wet room improves accessibility for everyday use. Outside, the plot sits at the bottom of the site with a scheduled patio, shed and enclosed artificial-grass garden that needs little maintenance. Council tax is very low and the property is offered freehold and chain-free.
This will suit retirees seeking a low‑upkeep base close to local amenities in Coalpit Heath, or buyers wanting a ready-to-live-in park home with modern fixtures. Important practical points: the property is on an age-restricted site (55+) and the accommodation is an average-sized mobile home, so external space and internal room sizes are more modest than a typical house.
Buyers should note the home is a mobile/park home style property — while recently redecorated and well-presented, resale and mortgage options can differ from conventional houses. Viewing is recommended to assess layout and space in person.
2 bedroom mobile home for sale in Ram Hill, Coalpit Heath, Bristol, BS36 — £130,000 • 2 bed • 1 bath • 499 ft²
2 bedroom mobile home for sale in Ram Hill, Coalpit Heath, Bristol, BS36 — £160,000 • 2 bed • 2 bath • 393 ft²
2 bedroom detached house for sale in Kingsway Park, Tower Lane, Warmley, Bristol, BS30 — £190,000 • 2 bed • 1 bath • 637 ft²
1 bedroom mobile home for sale in Greenacres Park, Ram Hill, Coalpit Heath, BS36 — £119,000 • 1 bed • 1 bath • 410 ft²
2 bedroom park home for sale in Woodlands Park, Almondsbury, Bristol, BS32 — £160,000 • 2 bed • 1 bath • 483 ft²
2 bedroom park home for sale in Almondsbury, Bristol, BS32 — £230,000 • 2 bed • 1 bath • 630 ft²


















































