NE38 0QN - 3 bedroom semidetached house for sale in Longridge Avenue,…

View on Property Piper

3 bedroom semi-detached house for sale in Longridge Avenue, Washington, Tyne and Wear, NE38

Summary - 26, Longridge Avenue NE38 0QN

3 bed 1 bath Semi-Detached

**Standout Features:**
- Three bedrooms and a family bathroom + separate W/C
- Stunning conservatory with underfloor heating
- Off-street parking for two vehicles and garage
- Generous wrap-around garden, perfect for families
- No onward chain for quicker transactions
- Energy-efficient EPC rating of C; low council tax band B

Nestled in a desirable and quiet residential area, this charming three-bedroom semi-detached property is ideal for first-time buyers, families, or investors looking for a valuable rental opportunity. The inviting entrance leads you into a spacious living area that transitions seamlessly to a fantastic conservatory, complete with underfloor heating—a perfect space for relaxation or entertaining. The home includes a neutral kitchen that also connects to the conservatory, as well as three well-proportioned bedrooms and a family bathroom.

Outside, you'll find off-street parking, a garage, and a beautiful wrap-around garden—a rare find that adds significant outdoor appeal. With local amenities, excellent schools, and fast broadband nearby, this property caters to modern lifestyles and offers potential for personalization or further renovations. Priced competitively at £155,000, this home represents a perfect chance to join a community with outstanding educational opportunities and low crime rates. Don’t miss the opportunity to secure this property—it’s chain-free and ready for you to make it your own!

Property Details

Image Descriptions

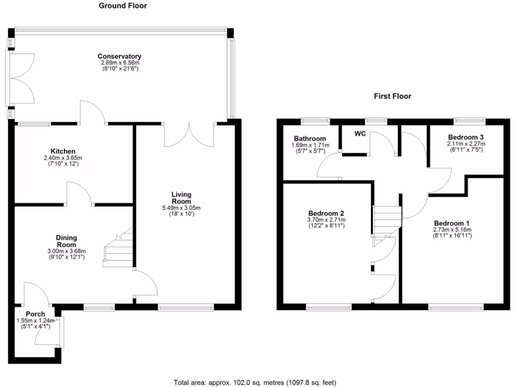
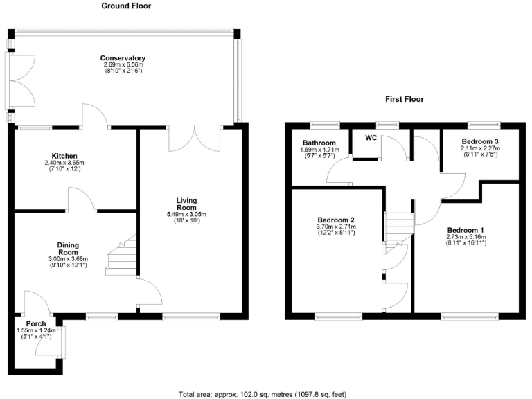
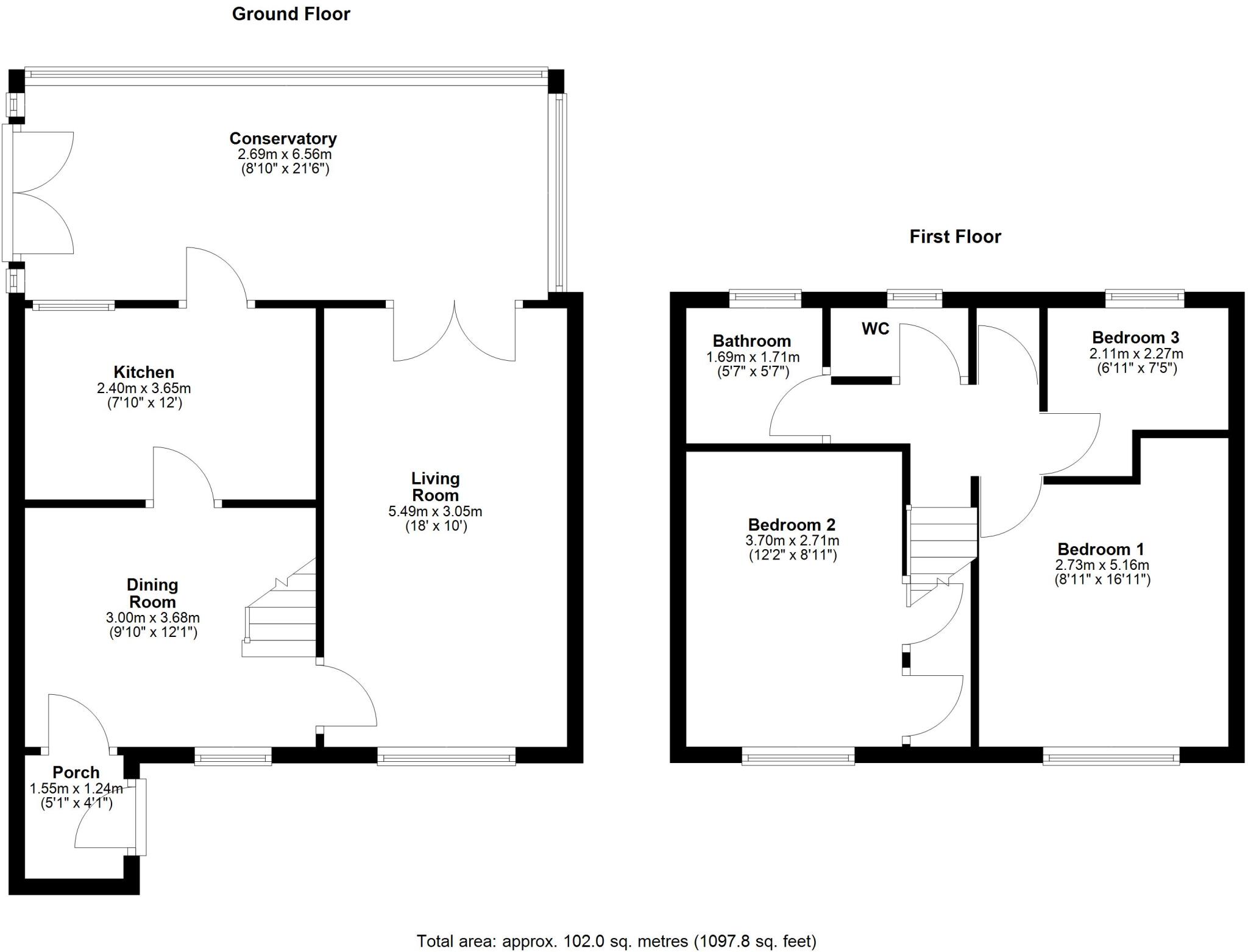
Floorplan Description

Rooms

Textual Property Features

Detected Visual Features

EPC Details

Nearby Schools

Nearest Bars And Restaurants

,,,,}

Nearest General Shops

,,}

Nearest Grocery shops

,,}

Nearest Supermarkets

,,}

Nearest Religious buildings

,,}

Nearest Medical buildings

,,,}

Nearest Airports

,}

Nearest Leisure Facilities

,,,,}

Nearest Tourist attractions

,,}

Nearest Train stations

,,,,}

Nearest Bus stations and stops

,,,,}

Nearest Hotels

,,}

Tags

Local Market Stats

Similar Properties

Meta

High Res Images

Compatible Images

Low res Images

Thumbnails

Raw Images

High Res Floorplan Images

Compatible Floorplan Images

Low res Floorplan Images

FloorplanImages Thumbnail

Raw Floorplan Images