**Standout Features:**
- Three bedrooms
- Mid-terraced design with modern brick facade
- No onward chain, making it easy to move in
- Off-street parking and a low-maintenance front
- Bright living room with large window and fireplace
- Delightful rear garden with conservatory
- Recently installed wet room
- Ideal for first-time buyers
- Affordable Council Tax Band A
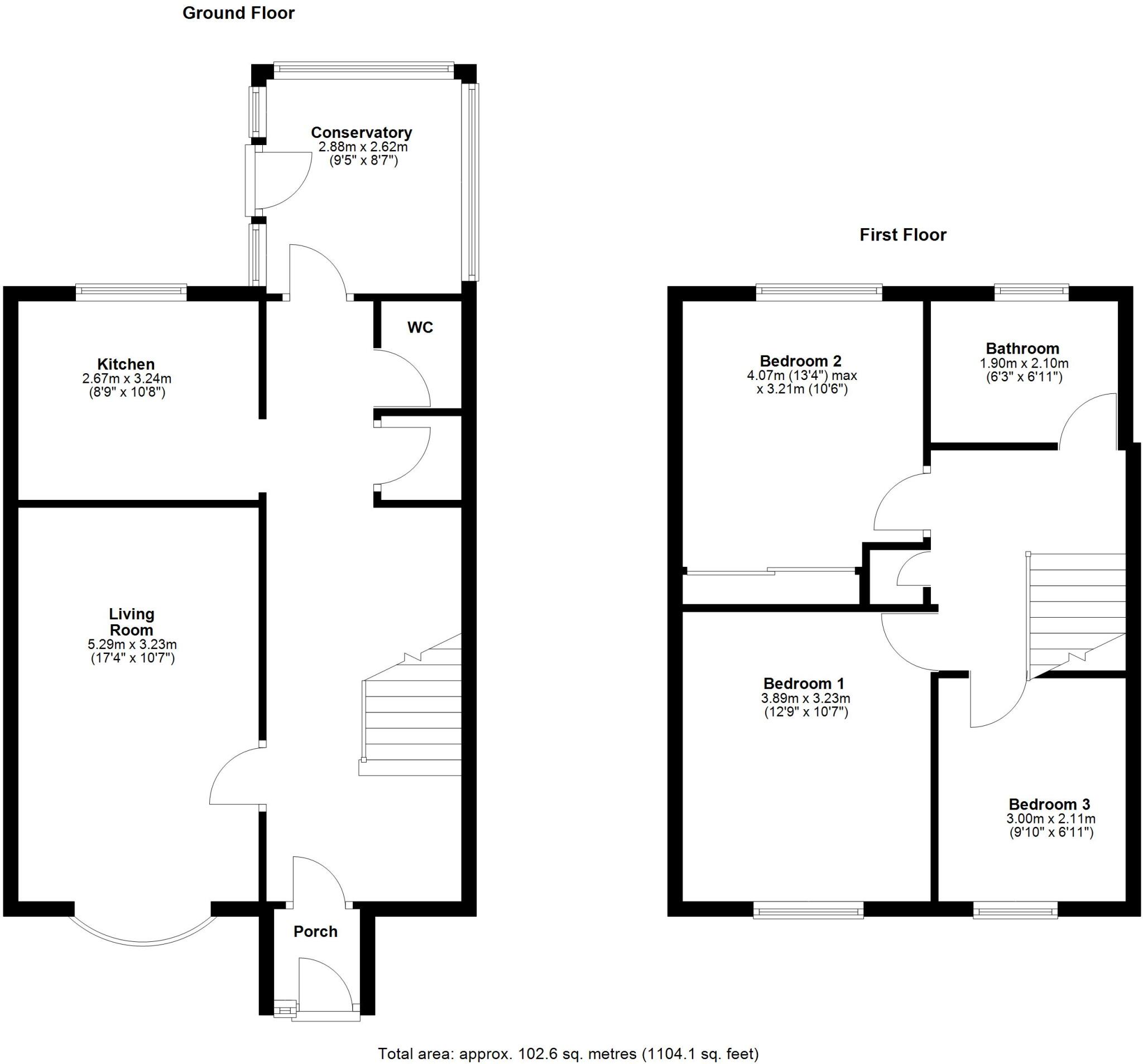
This well-maintained three-bedroom mid-terraced home offers an excellent opportunity for first-time buyers looking for comfort and convenience without the hassle of a chain. Situated in a peaceful cul-de-sac with a lovely view of green space, this property features off-street parking and a small yet inviting garden, complete with a conservatory perfect for year-round relaxation.
The inviting entrance opens to a bright living room with a traditional fireplace, while the well-proportioned kitchen provides easy access to the conservatory. With three good-sized bedrooms equipped with ample storage, and a recently updated wet room, the home offers comfortable living space with plenty of potential for personalization.
Located in a major conurbation with excellent transport links and local amenities nearby, this property is a prime choice for families, investors, or those looking to downsize. Don’t miss out on this unique opportunity, especially given the attractive price point and the low running costs associated with the property. This gem won’t last long!
3 bedroom terraced house for sale in Stanhope, Washington, Tyne and Wear, NE38 — £95,000 • 3 bed • 1 bath • 850 ft²
3 bedroom terraced house for sale in Waskerley Road, Washington, NE38 — £100,000 • 3 bed • 1 bath • 829 ft²
3 bedroom end of terrace house for sale in Wellburn Road, Washington, Tyne and Wear, NE37 — £105,000 • 3 bed • 1 bath • 1143 ft²
3 bedroom semi-detached house for sale in Longridge Avenue, Washington, Tyne and Wear, NE38 — £155,000 • 3 bed • 1 bath • 1097 ft²
3 bedroom end of terrace house for sale in Capesthorne Road, Washington, Tyne and Wear, NE38 — £185,000 • 3 bed • 1 bath • 608 ft²
3 bedroom terraced house for sale in Barningham, Washington, Tyne and Wear, NE38 — £185,000 • 3 bed • 1 bath • 664 ft²


















































