Practical family home with garden, driveway and no onward chain.
Three bedrooms and two reception rooms for flexible family layouts
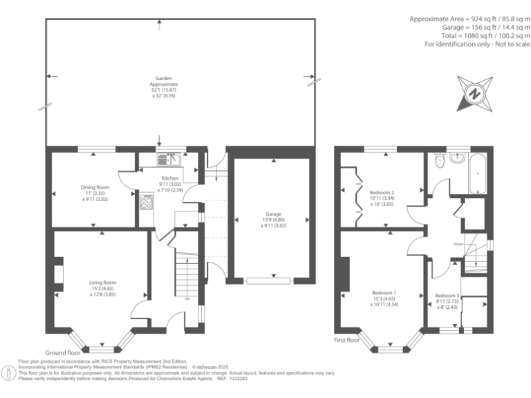
This three-bedroom semi-detached home in a quiet Newbury cul-de-sac offers straightforward family living with practical outdoor space and parking. Two reception rooms give flexible living — use the dining room as a playroom, home office, or open it into the kitchen to create a larger family hub. The low-maintenance enclosed rear garden and driveway plus a garage/outbuilding suit families who need storage or hobby space.
Built around the 1930s–40s, the house retains period proportions and sits on a decent plot. The property is offered with no onward chain, making it easier to move quickly. Primary and secondary schools rated 'Good' are nearby, and local broadband and mobile signal are strong — useful for working from home and homework.
There are a few practical issues buyers should note: the home has only one bathroom and the glazing dates from before 2002. The cavity walls are assumed to have no insulation, so buyers may want to budget for improvements to energy performance and potential modernisation. Crime in the immediate area is above average, which some buyers will wish to consider.
Overall this is a solid, freehold family property that presents scope to update and add value. It will suit buyers seeking a ready-to-adapt home in a very affluent area of Newbury, with easy access to schools and town amenities.
3 bedroom detached house for sale in Pear Tree Lane, Newbury, RG14 — £450,000 • 3 bed • 1 bath • 1188 ft²
3 bedroom semi-detached house for sale in Newbury, Berkshire, RG14 — £325,000 • 3 bed • 1 bath • 774 ft²
3 bedroom semi-detached house for sale in Abbey Close, Newbury, Berkshire, RG14 — £460,000 • 3 bed • 2 bath • 1198 ft²
3 bedroom semi-detached house for sale in Priory Road, Newbury, RG14 — £425,000 • 3 bed • 2 bath • 882 ft²
3 bedroom end of terrace house for sale in Wellington Close, Newbury, RG14 2HG, RG14 — £350,000 • 3 bed • 1 bath • 893 ft²
2 bedroom semi-detached house for sale in Newbury, Berkshire, RG14 — £325,000 • 2 bed • 1 bath • 556 ft²






















































































