Compact family home close to schools, station and retail amenities.
Three bedrooms and one modern family bathroom
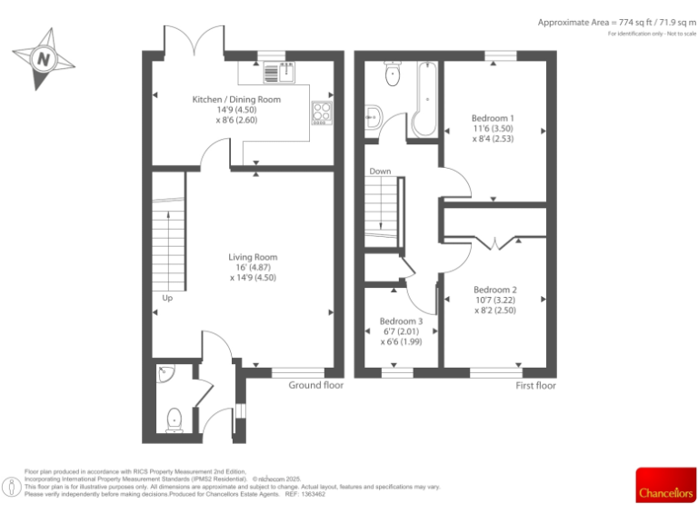
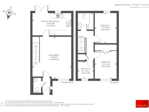
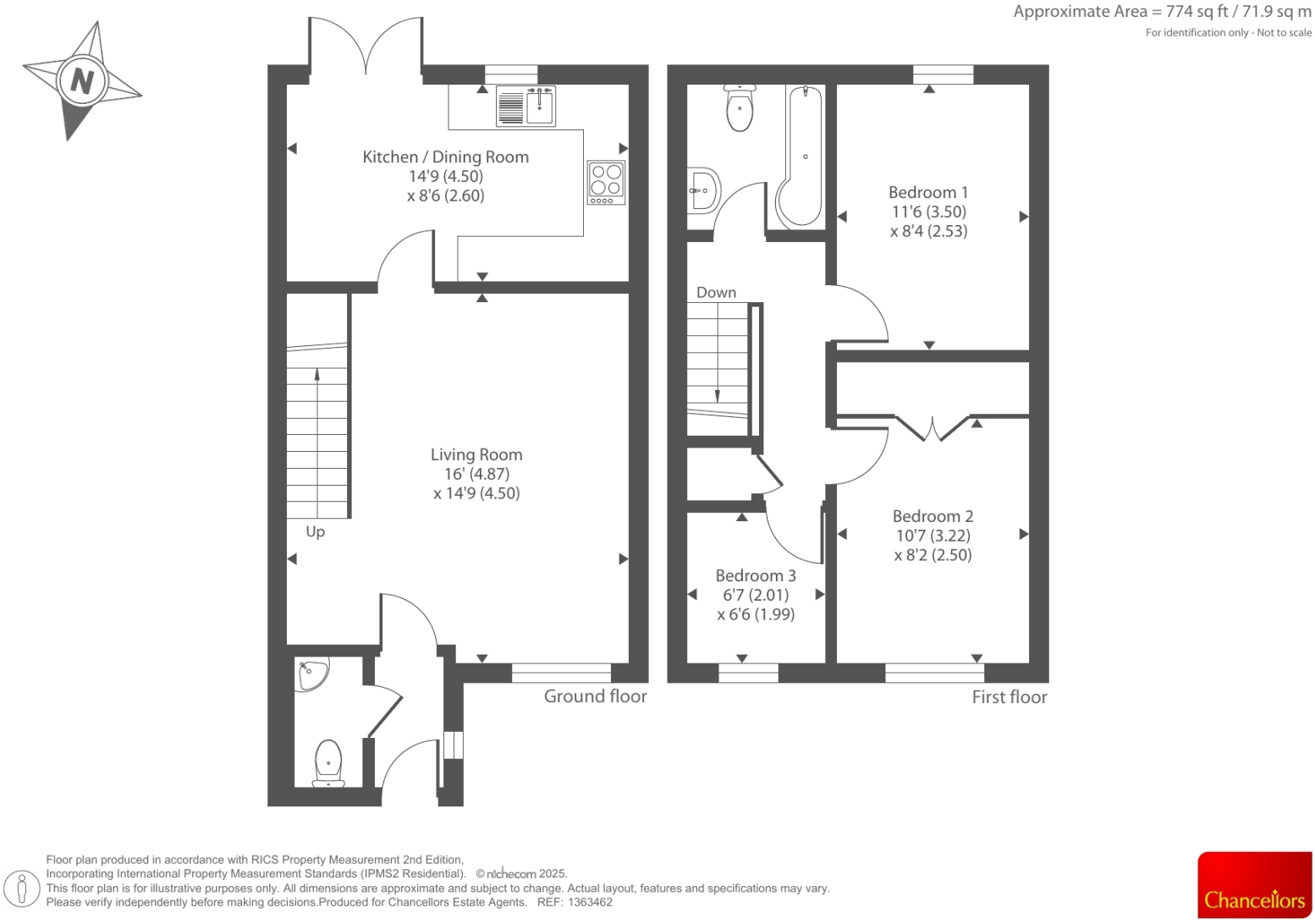
This modern three-bedroom semi-detached house sits in south Newbury, a short drive or walk to local schools, retail parks and Newbury train station. The property offers a practical layout for family life with an open kitchen/dining room, a separate living room, downstairs WC and an enclosed rear garden.
Driveway parking and a small, low-maintenance garden add convenience for families or buyers seeking easy upkeep. The home is chain-free and freehold, built c.2003–2006 and served by mains gas central heating and double glazing (install dates unknown).
Note the house is compact at around 774 sq ft with one family bathroom and a small plot; space may feel limited for larger households. The area records higher local crime levels, which prospective buyers should consider alongside the property's proximity to good schools and fast broadband/mobile signal.
Overall this property suits first-time buyers or young families looking for a well-located, low-maintenance home with straightforward potential for minor updating rather than full refurbishment.
3 bedroom semi-detached house for sale in Abbey Close, Newbury, Berkshire, RG14 — £460,000 • 3 bed • 2 bath • 1198 ft²
3 bedroom terraced house for sale in Epsom Crescent, Newbury, RG14 — £350,000 • 3 bed • 1 bath • 817 ft²
3 bedroom semi-detached house for sale in Priory Road, Newbury, RG14 — £425,000 • 3 bed • 2 bath • 882 ft²
3 bedroom end of terrace house for sale in Wellington Close, Newbury, RG14 2HG, RG14 — £350,000 • 3 bed • 1 bath • 893 ft²
4 bedroom semi-detached house for sale in Greenacre Place, Newbury RG14 7GY, RG14 — £485,000 • 4 bed • 2 bath • 1192 ft²
3 bedroom semi-detached house for sale in Edgecombe Lane, Newbury, Berkshire, RG14 — £525,000 • 3 bed • 2 bath • 1296 ft²


















































































