Move‑in ready four‑bed flat in a prestigious central location near top schools.
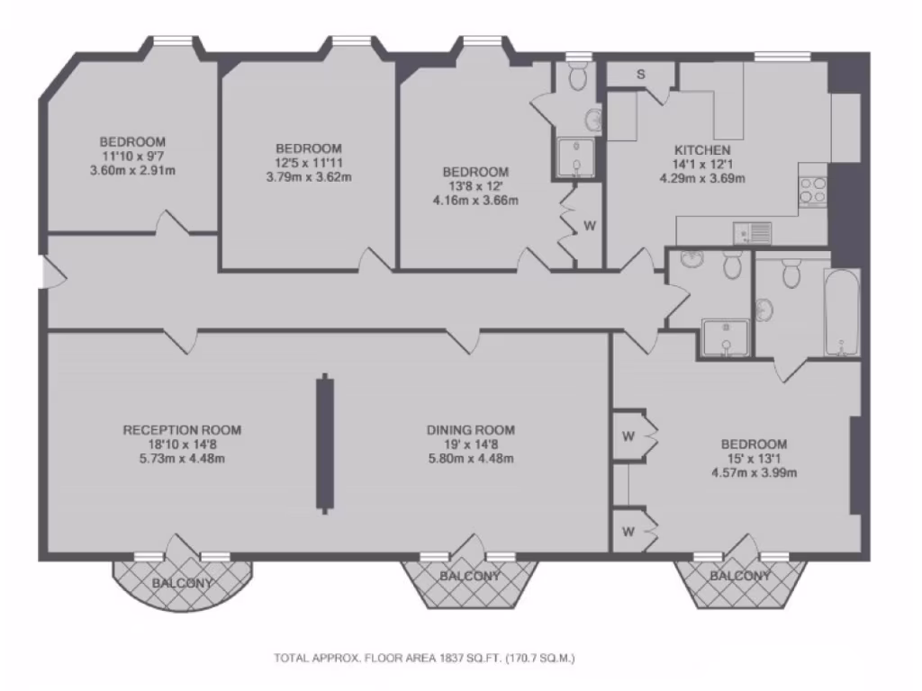
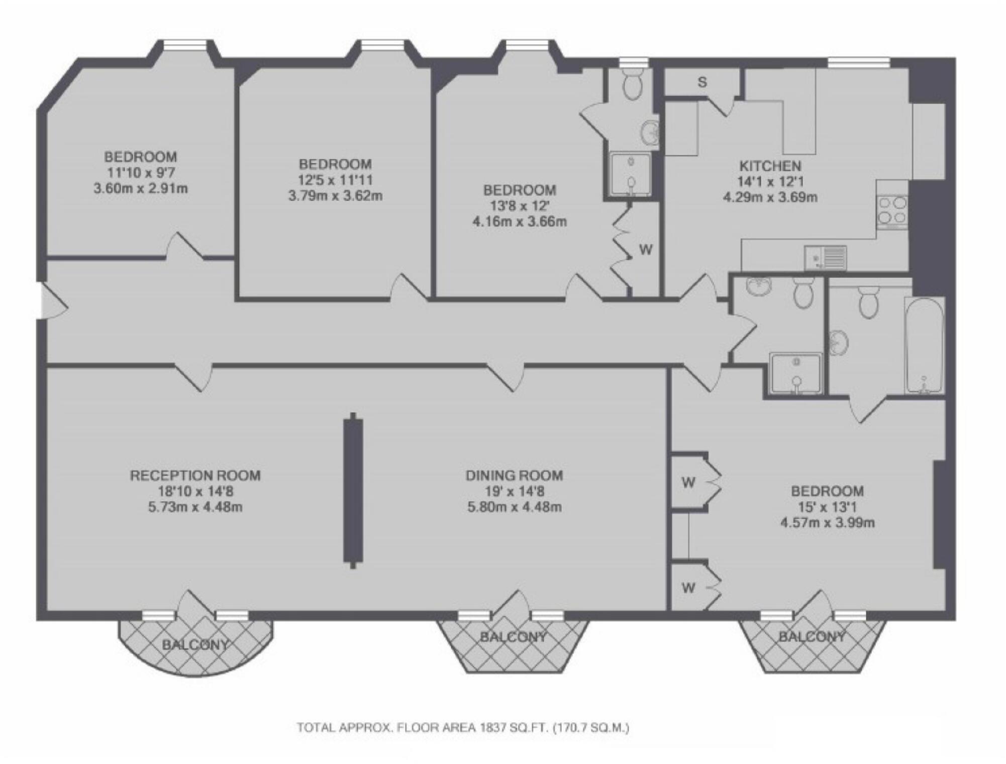
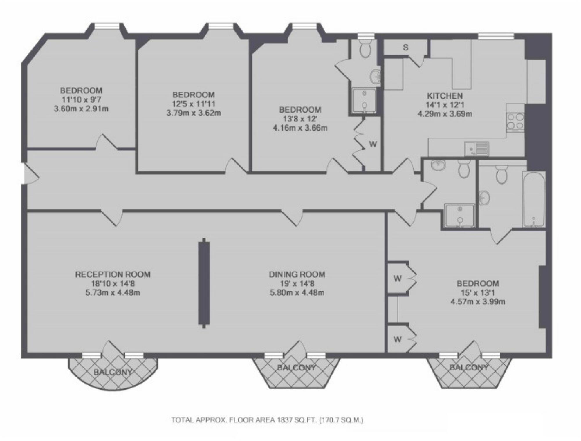
Four double bedrooms with two en suite bathrooms
1,837 sq ft — spacious third‑floor apartment
Recently refurbished to a high specification throughout
Bespoke eat‑in kitchen with integrated appliances
Long lease: 143 years remaining
Lift and porter service included in service charge
Service charge circa £6,000pa — above average
Local crime levels reported as very high
Set on the third floor of an Edwardian red‑brick mansion block in Marylebone, this recently refurbished four‑double‑bedroom apartment combines period proportions with contemporary finishes. The expansive double reception and high‑ceiling bespoke kitchen create generous living and entertaining spaces, while two bedrooms benefit from en suite facilities.
Practical strengths include a long lease (143 years), a passenger lift, and a full refurbishment with high‑end fixtures and integrated appliances. The sizeable 1,837 sq ft layout suits a family seeking spacious bedrooms and reception space in a central Zone 1 location, with excellent transport links at Marylebone and Edgware Road and strong local schools nearby.
Know‑how and running costs are material: the service charge is circa £6,000 per year (covers porter, lift, electricity, maintenance and sinking fund) and council tax sits at Band G — both above average for running a home. Crime levels are reported as very high in the immediate area; buyers should assess personal security requirements and insurance implications.
Overall this is a ready‑to‑move‑into, high‑spec family apartment in a sought‑after Marylebone address. It offers rare four‑double‑bedroom accommodation of this scale in Zone 1, balanced by notable ongoing costs and local safety considerations that prudent buyers will want to review.
4 bedroom flat for sale in Manor House,
Marylebone Road, NW1 — £1,160,000 • 4 bed • 2 bath • 1338 ft²
4 bedroom apartment for sale in Dorset Street, London, W1U — £2,595,000 • 4 bed • 2 bath • 1518 ft²
4 bedroom apartment for sale in Berkeley Court, Baker Street, London, NW1 — £1,950,000 • 4 bed • 2 bath • 1607 ft²
4 bedroom flat for sale in Cabbell Street, Marylebone, NW1 — £1,500,000 • 4 bed • 3 bath • 2340 ft²
2 bedroom flat for sale in Macready House, Crawford Street, Marylebone W1H — £1,700,000 • 2 bed • 2 bath • 852 ft²
4 bedroom flat for sale in Marylebone Road, LONDON, NW1 — £1,160,000 • 4 bed • 2 bath • 1384 ft²














































