WV5 8JA - 3 bed corner garden home in Foley Grove, WV5 8JA

View on Property Piper

3 bedroom end of terrace house for sale in 25 Foley Grove, Wombourne, Wolverhampton, WV5

Summary - 25 FOLEY GROVE WOMBOURNE WOLVERHAMPTON WV5 8JA

3 bed 1 bath End of Terrace

Three-bedroom freehold with garage, generous parking and canal-side garden — ideal for families.
Corner plot with large driveway and integral garage
Private rear garden adjacent to the canal, quiet outlook
Living room plus kitchen/dining room with patio doors
Three first-floor bedrooms and one family bathroom
Double glazing and gas central heating throughout
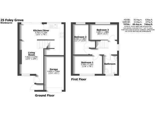
Approx 746 sq ft — modest overall living size
EPC pending; buyers should confirm energy details
Freehold, council tax band B, good broadband and mobile
This three-bedroom end-of-terrace sits on a large corner plot in the popular Poolhouse Farm estate, offering genuine outdoor space and generous off-road parking. The house has practical family accommodation: a living room, kitchen/dining room with patio doors, three first-floor bedrooms and a family bathroom. The private rear garden lies adjacent to the canal, creating a tranquil outlook.

Practical benefits include an integral garage, a sweeping driveway for several vehicles, double glazing and gas central heating. Broadband and mobile coverage are good, the property is freehold and council tax band B makes running costs relatively low. Local schools, shops and countryside walks are all within easy reach.

The home is modest in overall size (approximately 746 sq ft) and provides straightforward, traditional accommodation rather than large, modern open-plan spaces. The EPC is not yet available and buyer should note there is a single family bathroom only. The property will suit first-time buyers or young families looking for outside space, parking and a peaceful canal-side setting with scope to update interiors to taste.

Property Details

Brochure Descriptions

Image Descriptions

Floorplan Description

Rooms

Textual Property Features

Target Audience

AI Tags

Detected Visual Features

Nearby Schools

Nearest Bars And Restaurants

,,,,}

Nearest General Shops

,,}

Nearest Grocery shops

,,}

Nearest Supermarkets

,,}

Nearest Religious buildings

,,}

Nearest Medical buildings

,,,}

Nearest Leisure Facilities

,,,,}

Nearest Tourist attractions

,,}

Nearest Train stations

,,,,}

Nearest Bus stations and stops

,,,,}

Nearest Hotels

,,}

Tags

Local Market Stats

Similar Properties

Meta

High Res Images

Compatible Images

Low res Images

Thumbnails

Raw Images

High Res Floorplan Images

Compatible Floorplan Images

Low res Floorplan Images

FloorplanImages Thumbnail

Raw Floorplan Images