Auction lot with loft and rear extension potential, subject to consents.
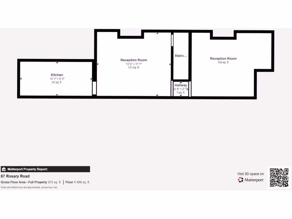
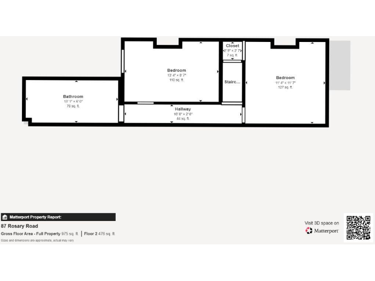
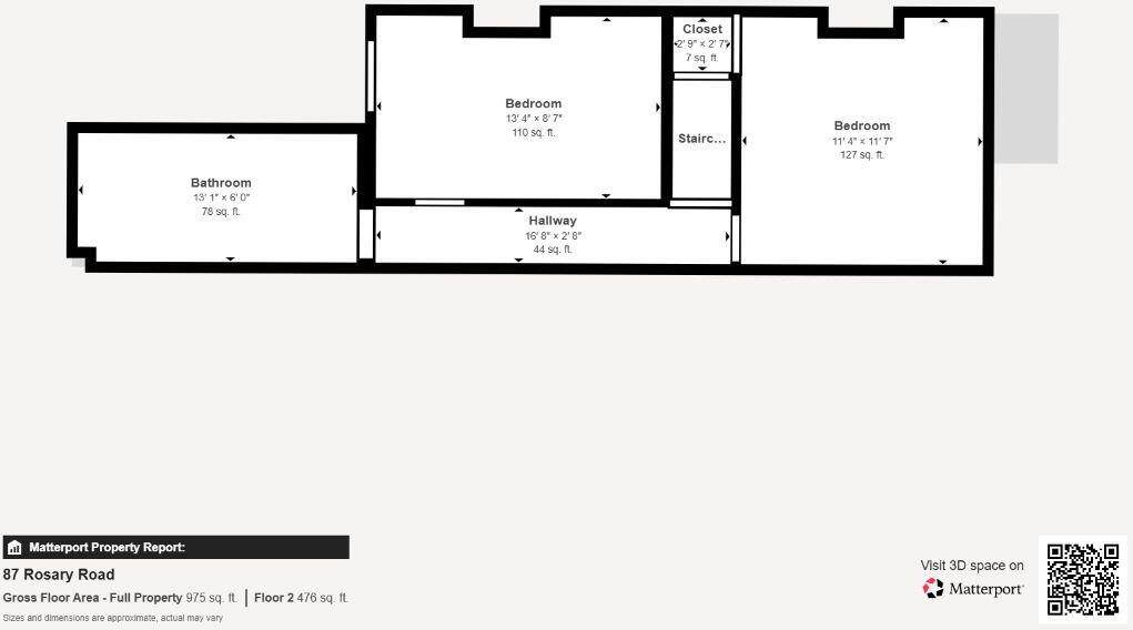
Vacant freehold Victorian terrace, approximately 975 sq ft
A vacant two-bedroom Victorian terraced house offered freehold at auction. The property is structurally typical of its era with solid brick walls, gas central heating and pre-2002 double glazing. It occupies a small plot with a foregarden, rear garden and outbuildings, and measures around 975 sq ft overall.
This lot will interest investors and developers. There may be development potential to extend into the loft and to the rear, subject to obtaining necessary planning consents. The area profile (social renting young families, urban cultural mix) and nearby schools rated Good suggest steady local rental demand, but any conversion plans will need formal approvals.
Buyers must note clear drawbacks: the area records high crime and very high deprivation, the walls are likely uninsulated, and the building will require refurbishment to meet modern standards. The sale is by public auction with vacant possession; successful bidders exchange immediately and must pay an administration fee and any costs detailed in the legal pack. View carefully and allow for remedial works and planning costs when budgeting.
3 bedroom end of terrace house for sale in 60 Auckland Road, Smethwick, B67 7AU, B67 — £39,000 • 3 bed • 1 bath • 897 ft²
2 bedroom end of terrace house for sale in 113 Greets Green Road, West Bromwich, West Midlands, B70 9ET, B70 — £50,000 • 2 bed • 1 bath
2 bedroom terraced house for sale in 33 Buckingham Mews, Sutton Coldfield, B73 5PR, B73 — £89,000 • 2 bed • 1 bath • 853 ft²
2 bedroom terraced house for sale in 46 Gough Road, Greet, Birmingham, B11 2NG, B11 — £50,000 • 2 bed • 1 bath • 722 ft²
3 bedroom terraced house for sale in 16 Blounts Road, Erdington, Birmingham, B23 7DH, B23 — £99,000 • 3 bed • 1 bath • 1133 ft²
3 bedroom terraced house for sale in 17 Harmer Street, Hockley, Birmingham, B18 7RT, B18 — £39,000 • 3 bed • 1 bath • 379 ft²


















































































