Secluded rural site with permission for four single‑storey homes.
Class Q permission for four single-storey dwellings (Ref: 25/02535/AGTRES)
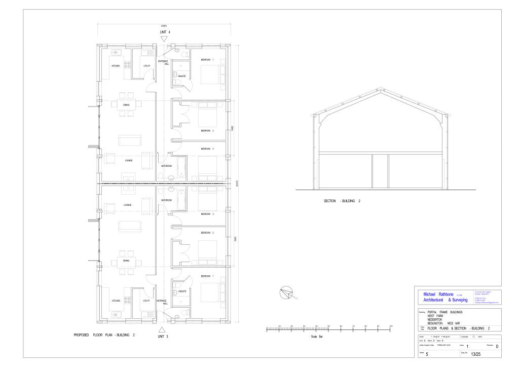
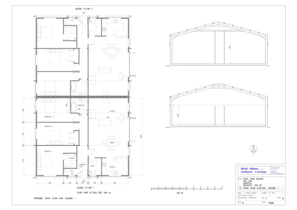
A rare Class Q opportunity in peaceful countryside: 0.81 acres with permission (Ref: 25/02535/AGTRES) to create four single‑storey dwellings of approx. 108 m² GIA each. The site includes two large agricultural/industrial-style barns and existing hardstanding, providing a clear base for conversions to three-bedroom homes complete with gardens and designated parking.
This is aimed at developers or investors seeking a low-density rural scheme with strong local access. The site sits just outside Nedderton with easy links to the A1(M), Morpeth rail services and regional centres, while retaining wide, uninterrupted countryside views. The vendor is open to negotiating additional surrounding land if required.
Buyers should note practical considerations before purchase: the buildings are agricultural and will require conversion works; services connections are not confirmed and should be independently investigated; boundaries will be the purchaser’s responsibility and access is via a private track (a formal right of access will be granted). Broadband speeds are very slow, although mobile signal is excellent and there is no reported flood risk.
Overall this is a straightforward freehold development plot in an affluent, low‑crime rural area offering immediate permitted development potential under Class Q. It suits small developers or investors comfortable arranging conversions, on‑site works and utilities connections to deliver four characterful single‑storey homes.
Plot for sale in Field House, Hepscott, Morpeth, Northumberland, NE61 — £950,000 • 1 bed • 1 bath
Plot for sale in Field House, Hepscott, Northumberland, NE61 — £550,000 • 1 bed • 1 bath
Land for sale in Throphill Farm - Lot 1, Throphill, Morpeth, Northumberland, NE61 — £695,000 • 1 bed • 1 bath
Land for sale in Throphill Farm, Throphill, Morpeth, Northumberland, NE61 — £1,695,000 • 1 bed • 1 bath
Residential development for sale in Clifton Park, Great North Road, Morpeth, Northumberland, NE61 6DG, NE61 — £3,000,000 • 1 bed • 1 bath
Land for sale in Residential Development Land at Whitehouse Farm, West Moor, Newcastle Upon Tyne, NE12 — £400,000 • 1 bed • 1 bath • 13939 ft²










































































