High-spec family living with studio gym and two-car parking close to stations.
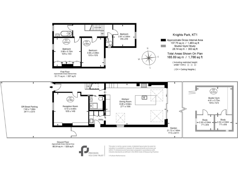
Three double bedrooms and luxury family bathroom
A beautifully refurbished Victorian semi-detached house that blends original character with high-end contemporary finishes. The sightlines from the vaulted, skylit kitchen/dining/living area create a dramatic family hub, while the formal reception room retains period detail such as cornicing, restored floorboards and a feature fireplace. The property is offered freehold and finished to a high specification throughout.
Practical family living is well catered for: three double bedrooms, a luxury family bathroom, ground-floor shower room, and a separate utility room. Outside, a professionally landscaped rear garden with automated irrigation and a detached insulated studio block provide excellent space for home working, fitness or hobbies. Off-street parking for two cars is a rare benefit for central Kingston.
Buyers should note a few material considerations. The house was built in the 1860s and has solid brick walls with no known external insulation; double glazing predates 2002. There is a medium flood risk for the area and the neighbourhood records very high crime levels. Council tax is expensive. These factors should be weighed alongside the recent comprehensive renovation and central location near stations, riverside and top schools.
Overall, this property will suit families or professionals seeking a central Kingston home with character, modern living spaces and dedicated remote-working facilities. Viewing is recommended to fully appreciate the scale, finish and versatile outbuilding.
3 bedroom semi-detached house for sale in Avenue Road, Kingston Upon Thames, KT1 — £825,000 • 3 bed • 1 bath • 1166 ft²
2 bedroom semi-detached house for sale in Mill Street, Kingston upon Thames, Surrey, KT1 2RG, KT1 — £675,000 • 2 bed • 1 bath • 758 ft²
4 bedroom detached house for sale in St. Albans Road, Kingston Upon Thames, KT2 — £1,750,000 • 4 bed • 2 bath • 2000 ft²
3 bedroom semi-detached house for sale in Mill Street, Kingston Upon Thames, KT1 — £860,000 • 3 bed • 1 bath • 1079 ft²
3 bedroom detached house for sale in Knights Park, Kingston upon Thames, KT1 — £1,295,000 • 3 bed • 3 bath • 1666 ft²
4 bedroom semi-detached house for sale in Kingston Road, Kingston Upon Thames, KT1 — £850,000 • 4 bed • 3 bath • 1434 ft²






























































































































