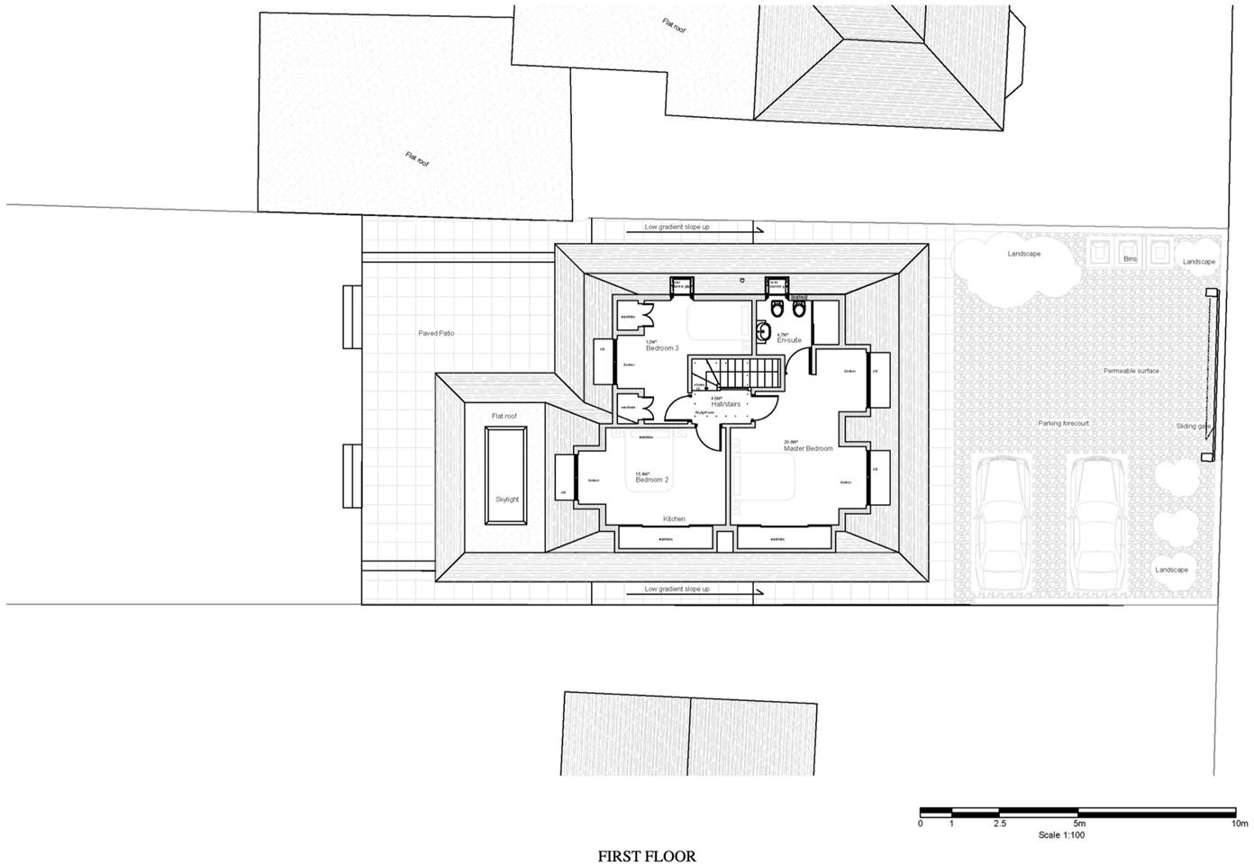
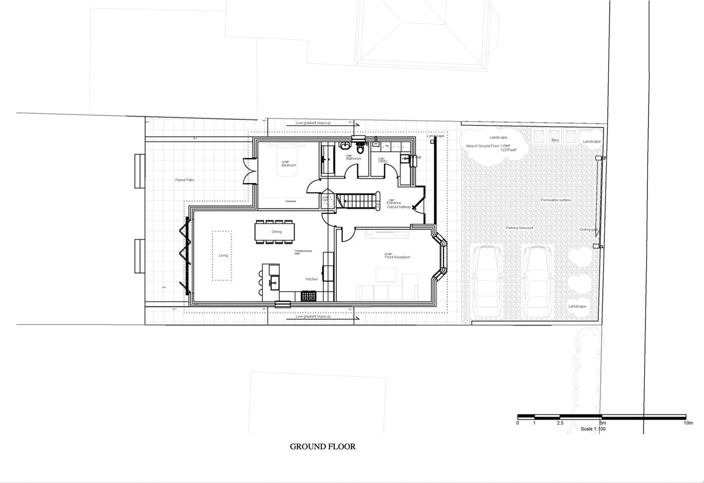
**Standout Features:**
- Large plot with potential for a stunning four-bedroom development.
- Existing three-bedroom bungalow offering immediate accommodation.
- Planning permission (EPF/2279/24) already approved for new build.
- Picturesque countryside views and serene environment.
- Freehold tenure, providing full ownership.
- Quiet location near Theydon Bois village with excellent transport links.
- High-performing local schools with outstanding Ofsted ratings.
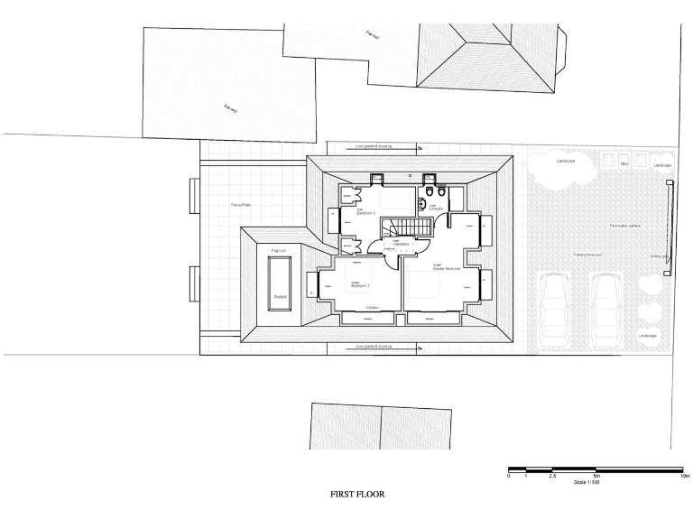
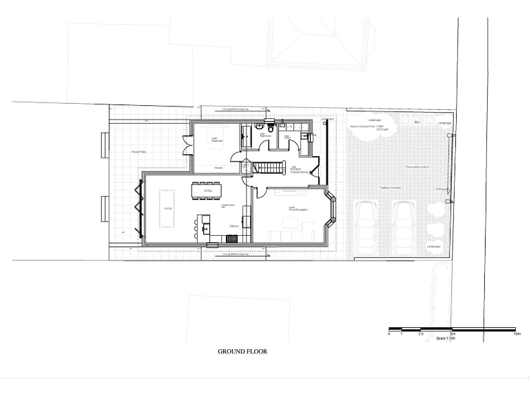
Nestled in the charming Theydon Bois, this property presents an exciting opportunity for developers or families seeking a tranquil countryside lifestyle. The existing three-bedroom bungalow sits on a generous plot, boasting planning permission to transform the space into a contemporary four-bedroom residence. Envision a dual-story layout featuring a primary bedroom with en suite, additional bedrooms, and ample living space—all designed to take full advantage of the breathtaking rolling countryside views.
While the bungalow is currently in sound condition, potential buyers should note some timber construction, warranting independent verification. The large garden includes an outbuilding, slated for removal under the new planning scheme, allowing for a fresh canvas. With a prime freehold location and easy access to Theydon Bois Underground Station, local shops, and the lush expanse of Epping Forest, this property marries convenience with an idyllic, community-focused living experience. Don’t miss this unique opportunity to create your dream home in a highly sought-after area!
4 bedroom detached house for sale in Blackacre Road, Theydon Bois, CM16 — £995,000 • 4 bed • 2 bath • 1167 ft²
Land for sale in Theydon Park Road, Theydon Bois, Epping, CM16 — £1,000,000 • 1 bed • 1 bath • 16181 ft²
Plot for sale in Honey Lane, Waltham Abbey, EN9 — £725,000 • 3 bed • 1 bath • 951 ft²
Plot for sale in Weald Road, South Weald, Brentwood, CM14 — £1,250,000 • 1 bed • 1 bath
Plot for sale in Tysea Hill, Stapleford Abbotts, RM4 — £350,000 • 1 bed • 1 bath • 1400 ft²
3 bedroom bungalow for sale in Meadow Lane, Runwell, Wickford, Essex, SS11 — £600,000 • 3 bed • 1 bath • 843 ft²














































